Appartamento in affitto - Sternenrain 7, 5525 Fischbach-Göslikon
Perché amerai questa proprietà
Cucina aperta spaziosa
Parco giochi moderno
Quartiere rurale tranquillo
Organizza una visita
Prenota una visita con Biffiger oggi!
Appartamento luminoso con grande balcone
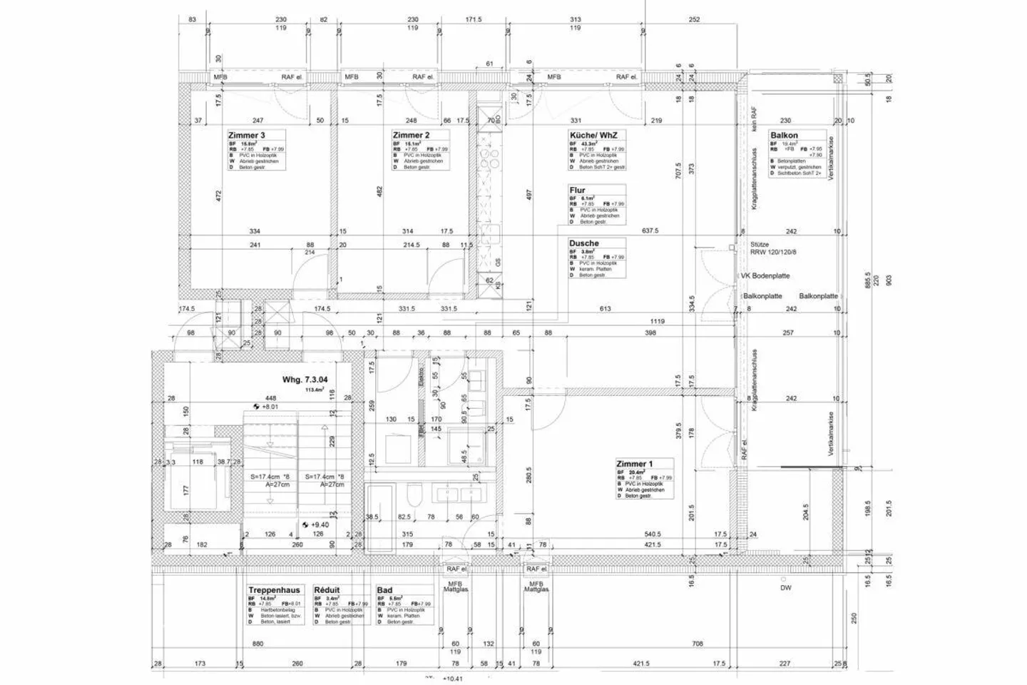
L'APPARTAMENTO:
L'appartamento si distingue per una pianta ben pensata. Le caratteristiche principali sono:
- tre camere e un ampio soggiorno/sala da pranzo
- cucina aperta con forno alto, lavastoviglie XXL, piano cottura in ceramica vetro e superfici in granito, oltre a molto spazio di stoccaggio
- bagno con doppio lavabo, mobile specchiera, vasca da bagno e WC
- seconda sala umida con lavabo, mobile specchiera, doccia e lavabo
- ripostiglio nell'appartamento con lavatrice/asciugatrice
- ripostiglio a...
Ripartizione dei costi
- Affitto netto
- CHF 2’020
- Costi aggiuntivi
- CHF 270
- Totale delle locazioni
- CHF 2’020
Dettagli immobile
- Disponibile dal
- Su accordo
- Stanze
- 4.5
- Anno di costruzione
- 2016
- Superficie abitabile
- 113 m²
- Piano
- 2°



