Appartamento in affitto - Rue Du Quartier-Neuf 7, 1205 Genève
Perché amerai questa proprietà
Zona giorno luminosa con balcone
Cucina aperta completamente attrezzata
Vicino ai mezzi pubblici
Organizza una visita
Prenota una visita con M. oggi!
Collegamento - vicino al quartiere bancario
Rue du Quartier-Neuf 7 è una strada tranquilla situata nel quartiere Jonction, non lontano da negozi e mezzi di trasporto, così come dal Rodano.
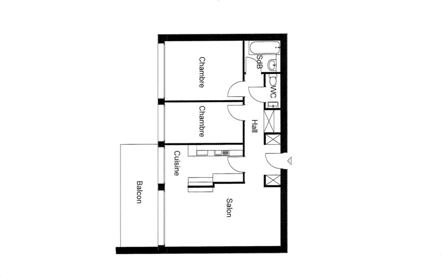
L'appartamento che vi offriamo si trova al 2° piano di un edificio ben curato con porta d'ingresso sicura e ascensore.
Esso è composto da:
Ingresso, una cucina completamente attrezzata, sviluppata e aperta su un bel soggiorno con balcone.
L'area notte offre due belle camere da letto, un bagno e un wc separato.
Fermata del tram/bus nelle vicinanze: ferma...
Ripartizione dei costi
- Affitto netto
- CHF 2’800
- Costi aggiuntivi
- CHF 300
- Totale delle locazioni
- CHF 2’800
Dettagli immobile
- Disponibile dal
- 19.12.2025
- Stanze
- 4
- Superficie abitabile
- 65 m²
- Piano
- 2°



