Attico in affitto - Pannerhofstrasse 7, 6034 Inwil
Perché amerai questa proprietà
Cucina moderna con elettrodomestici V-Zug
Elegante pavimento in rovere
Loggia accogliente per rilassarsi
Organizza una visita
Prenota una visita oggi!
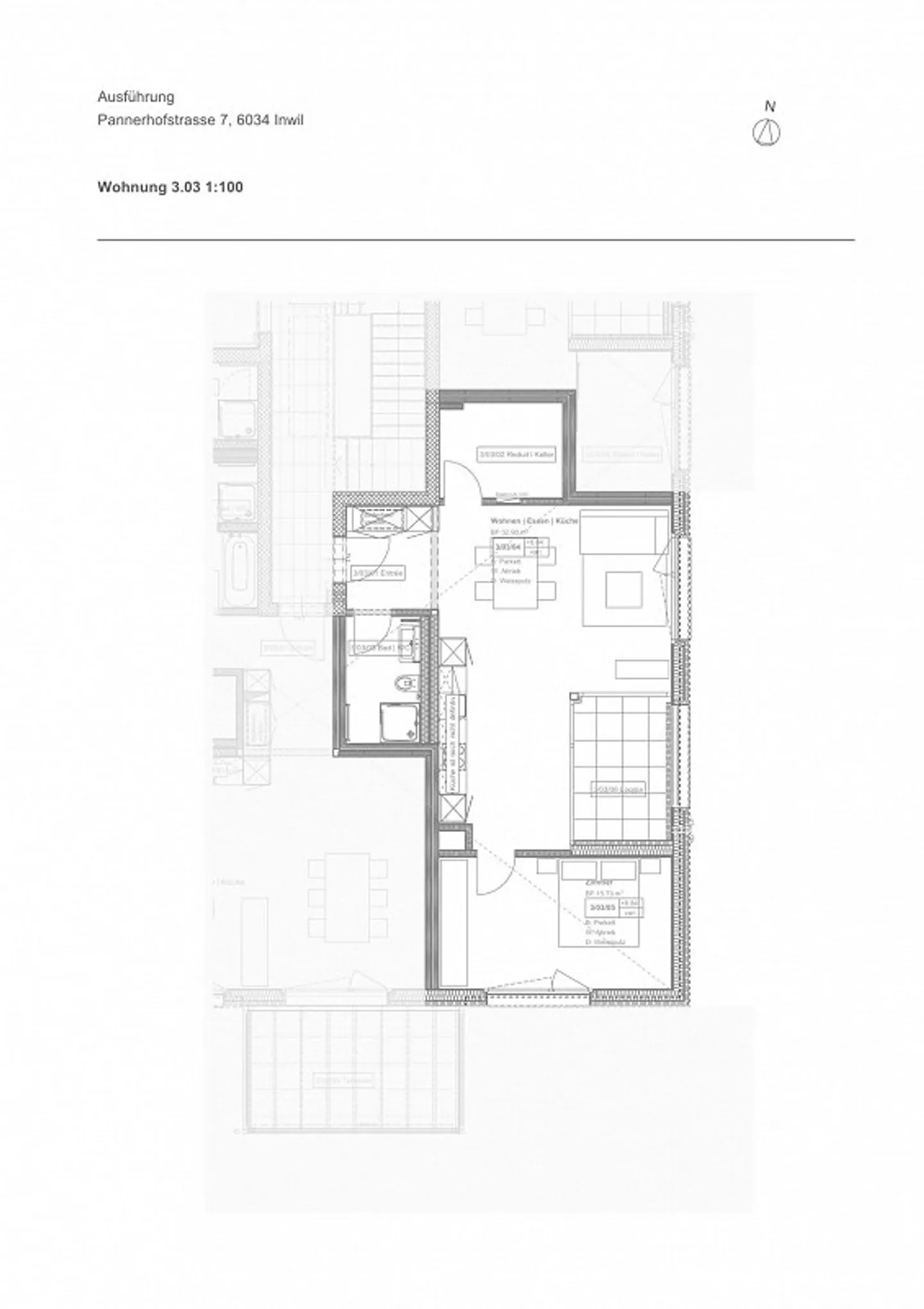
Prima locazione di un appartamento attico di 2,5 stanze nel cuore di inwil
Nel centro del villaggio di Inwil, in Pannerhofstrasse 7, si sta attualmente creando un moderno piano attico mediante l'ampliamento di una proprietà esistente. A partire dal 1 novembre 2025, qui saranno disponibili quattro appartamenti in affitto di alta qualità e arredati con stile.
Gli appartamenti impressionano per il loro standard di costruzione moderno, una disposizione degli spazi ben pensata e un concetto di design caldo e armonioso.
La spaziosa cucina in elegante beige è dotata di elettro...
Ripartizione dei costi
- Affitto netto
- CHF 1’930
- Costi aggiuntivi
- CHF 180
- Totale delle locazioni
- CHF 1’930
Dettagli immobile
- Disponibile dal
- Su accordo
- Stanze
- 2.5
- Anno di costruzione
- 2014
- Superficie abitabile
- 64 m²
- Piano
- 3°


