1 / 12

Appartamento in affitto - Florastrasse 7, 8700 Küsnacht ZH

3.5 rooms • 98 m² • 3° piano
CHF 4’424.-
CHF 542 m² / year

Perché amerai questa proprietà

Ampio soggiorno con vista

Cucina moderna con elettrodomestici di alta gamma

Posizione centrale vicino ai servizi

Organizza una visita

Prenota una visita oggi!

Zanella Partner Immobilien AG
Questa descrizione è stata tradotta automaticamente da Tedesco.

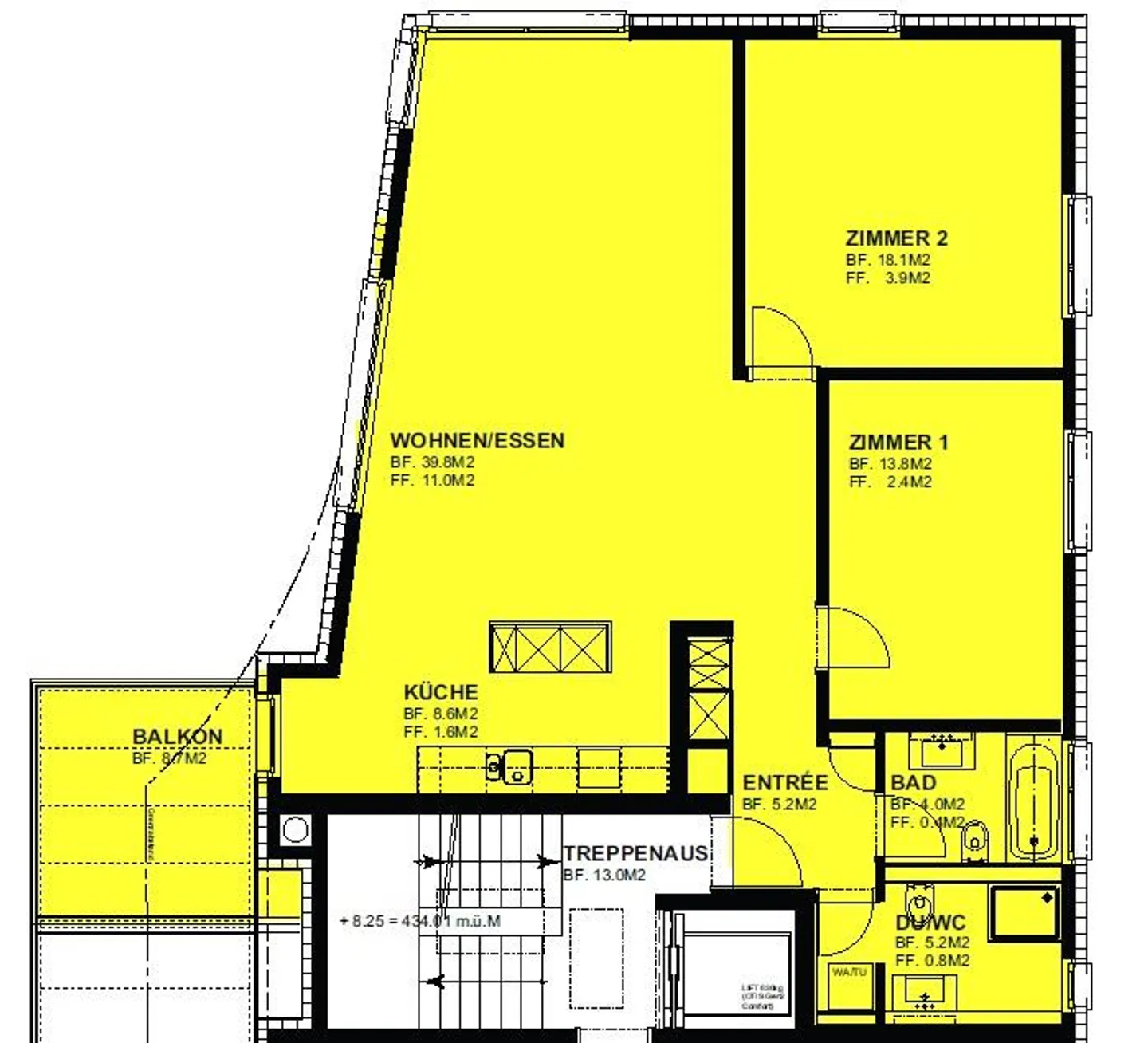
Vivere moderno con balcone soleggiato e vista

Affittiamo questo moderno, spazioso e luminoso appartamento di 3,5 stanze al 3° piano a partire dal 1° dicembre 2025.

L'appartamento offre una cucina moderna e aperta con piano cottura in ceramica vetro, lavastoviglie, forno a livello degli occhi, vapore e piano in granito. Il soggiorno spazioso e luminoso (circa 40 m²) colpisce per la sua grande vetrata, che rende la stanza unica e dispone di un accesso diretto al balcone soleggiato. Tutte le stanze sono dotate di piastrelle in ceramica nera. En...

Dettagli immobile

Disponibile dal
01.12.2025
Stanze
3.5
Anno di costruzione
2010
Superficie abitabile
98
Piano

Caratteristiche

Giardino
Garage
Balcone
Parcheggio
Vista libera
Ascensore
Tv via cavo
Internet
Lavatrice
Asciugatrice
Lavastoviglie

Agenzia

Zanella Partner Immobilien AG
Ref: 905.1/1031

Località

Florastrasse 7, 8700 Küsnacht ZH

Fonti