Appartamento in affitto - 6977 Ruvigliana
Perché amerai questa proprietà
Terrazza coperta di 22 m²
Lavanderia privata
Complesso residenziale di lusso
Organizza una visita
Prenota una visita con oggi!
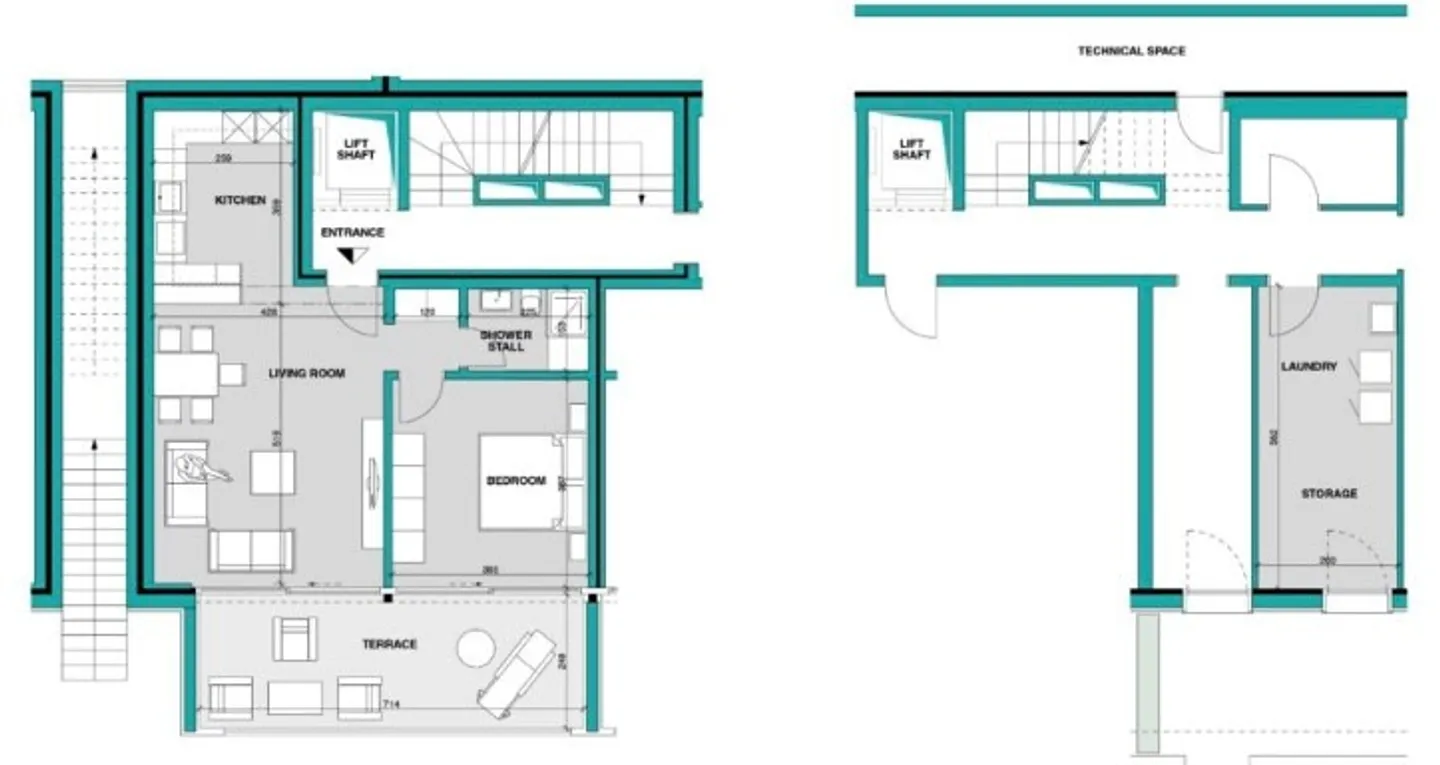
Offriamo in affitto un appartamento di 2,5 locali al lago a LUGANO Castagnola.
L'appartamento in un complesso residenziale di lusso ha:
Accesso al piano con ascensore o scala comune
Soggiorno, cucina arredata con elettrodomestici Siemens
Terrazza coperta di 22 m2
WC con doccia
1 camera da letto con accesso alla terrazza
Al livello -1
accessibile con ascensore
lavanderia privata di 12 m2 con lavatrice e asciugatrice installate.
Superficie abitabile
Superficie a livello 60 m2
Superficie della terrazza 22 m2
Su...
Dettagli immobile
- Disponibile dal
- Su accordo
- Stanze
- 2
- Bagni
- 1
- Servizi igienici
- 1
- Parcheggi interni
- 2
- Anno di costruzione
- 2019
- Superficie abitabile
- 60 m²
- Superficie terreno
- 94 m²
- Superficie terrazza
- 22 m²
- Piani dell'edificio
- 2



