Appartamento in affitto - Lyss-Strasse 69, 2560 Nidau
Perché amerai questa proprietà
Nessun deposito richiesto
Vicino ai trasporti pubblici
Balcone con vista piacevole
Organizza una visita
Prenota una visita con Michèle oggi!
AFFITTARE SENZA CAUZIONE - Potresti piacerti qui
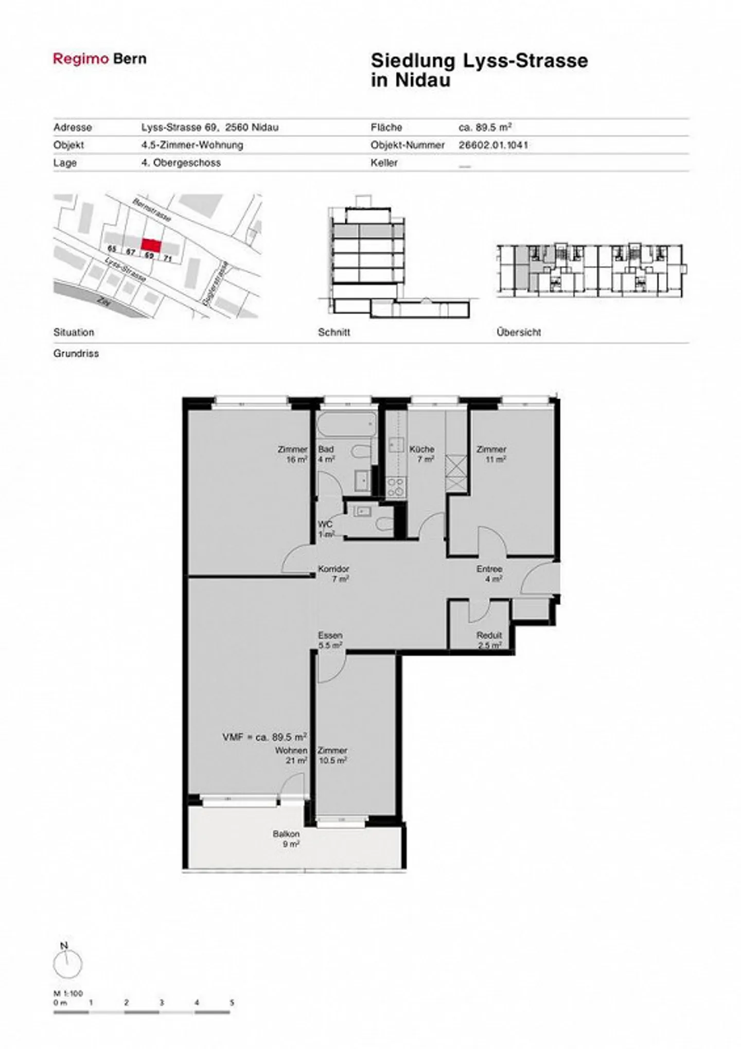
L'appartamento si trova in un edificio multifamiliare ben tenuto. I negozi e i mezzi di trasporto pubblico sono disponibili nelle immediate vicinanze.
Per la tua qualità abitativa:
- cucina chiusa con piano cottura in ceramica
- pavimento in parquet nel soggiorno e nelle camere da letto
- bagno con vasca/WC
- armadi a muro nel corridoio
- balcone
- ripostiglio
- cantina
- ascensore
In aggiunta su richiesta: posto auto in garage sotterraneo, CHF 100.00/mese
Con questo immobile in affitto non è necessario ve...
Ripartizione dei costi
- Affitto netto
- CHF 1'560
- Costi aggiuntivi
- CHF 300
- Totale delle locazioni
- CHF 1'560
Dettagli immobile
- Disponibile dal
- Su accordo
- Stanze
- 3.5
- Anno di costruzione
- 1973
- Superficie abitabile
- 76 m²
- Piano
- 4°



