Appartamento in affitto - Freiestrasse 69, 8406 Winterthur
Perché amerai questa proprietà
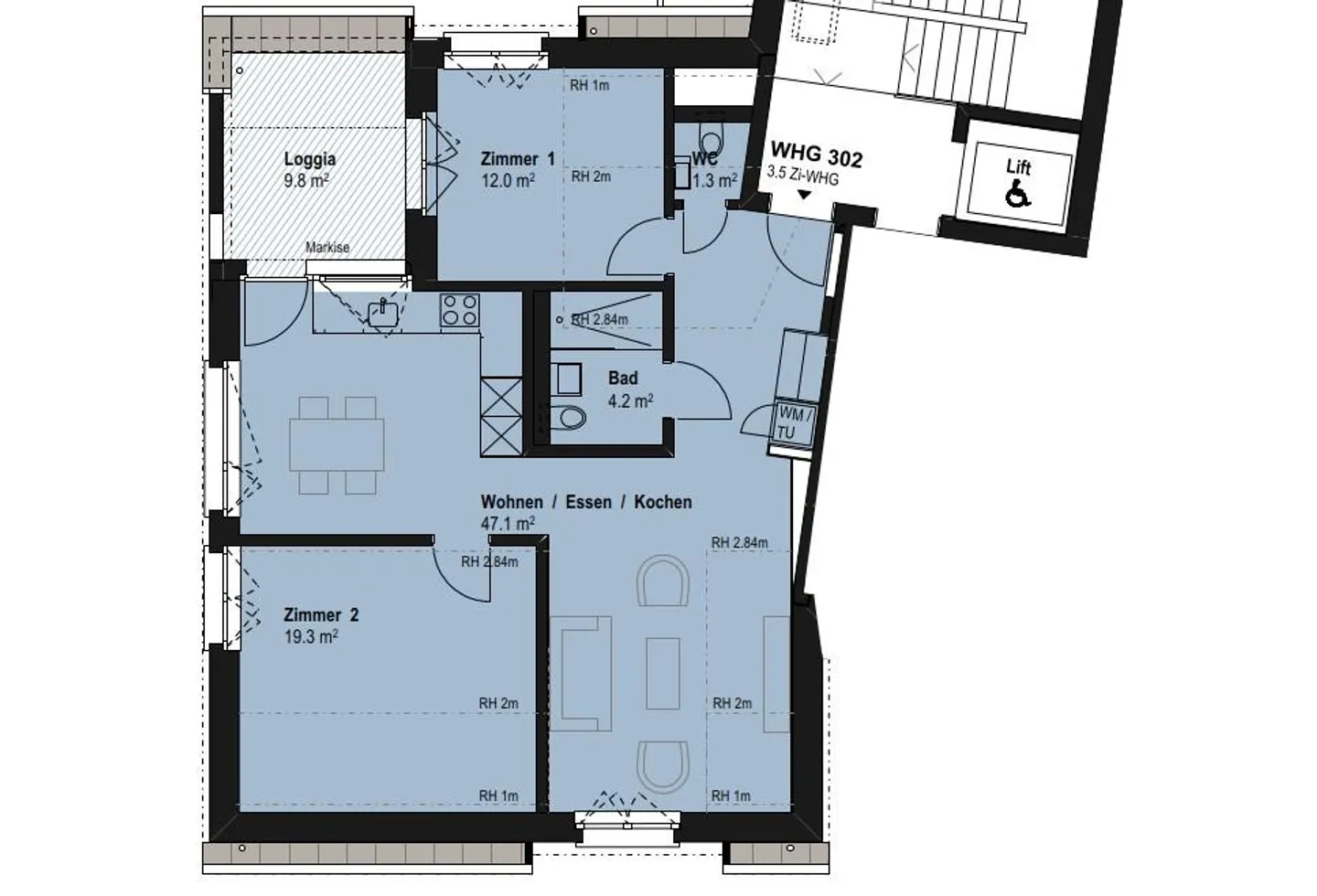
Loggia soleggiata per rilassarsi
Doccia walk-in per comfort
Lavatrice e asciugatrice in appartamento
Organizza una visita
Prenota una visita con Eva oggi!
Prima locazione vicino alla stazione di töss
Appartamento moderno all'ultimo piano in nuovo edificio in affitto.
I tuoi vantaggi:
- Cucina con forno e combinato a vapore separato
- Loggia soleggiata
- Doccia walk-in
- Lavatrice e asciugatrice proprie nell'appartamento
- Cantina in muratura (10 m2)
- Pompa di calore a sonda geotermica economica
Parcheggio: Non ci sono più posti auto disponibili direttamente presso l'edificio. La città di Winterthur offre permessi di parcheggio per la zona blu (CHF 710 all'anno).
Attualmente ci sono ancora lavori in ...
Ripartizione dei costi
- Affitto netto
- CHF 2’460
- Costi aggiuntivi
- CHF 260
- Totale delle locazioni
- CHF 2’460
Dettagli immobile
- Disponibile dal
- Su accordo
- Stanze
- 3.5
- Anno di costruzione
- 2025
- Superficie abitabile
- 84 m²
- Piano
- 3°
- Piani dell'edificio
- 4



