Appartamento in affitto - 6852 Genestrerio
Perché amerai questa proprietà
Ampio soggiorno con balcone
Cucina moderna con elettrodomestici
Due bagni eleganti con finestre
Organizza una visita
Prenota una visita oggi!
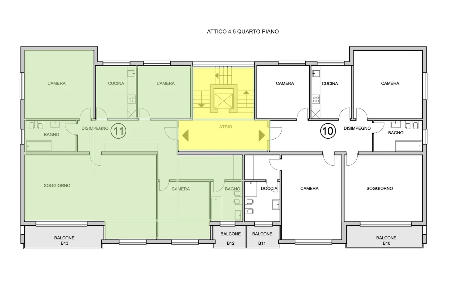
AFFITTASI LUMINOSO ATTICO 4.5 LOCALI RINNOVATO A GENESTRERIO
Splendido attico di 4.5 locali di ca. 160 mq lordi rinnovato e situato al quarto e ultimo piano in una palazzina ubicata in zona tranquilla e residenziale, ideale per chi cerca la giusta combinazione tra comfort e relax, nel comune di Genestrerio.
L’appartamento è cosi disposto:
ampio soggiorno luminoso e accogliente, perfetto per trascorrere momenti di relax con familiari e amici, con accesso ad un comodo balcone con vista aperta. Cucina abitabile moderna e funzionale dotata di elettrodomestici d...
Ripartizione dei costi
- Affitto netto
- CHF 1’550
- Costi aggiuntivi
- CHF 420
- Totale delle locazioni
- CHF 1’970
Dettagli immobile
- Disponibile dal
- 01.02.2026
- Stanze
- 4.5
- Anno di costruzione
- 1971
- Superficie abitabile
- 150 m²
- Superficie utilizzabile
- 150 m²
- Piano
- 2°




