Appartamento in affitto - 6390 Engelberg
Perché amerai questa proprietà
Vista alpina mozzafiato
Cucina aperta moderna
Ampio balcone coperto
Organizza una visita
Prenota una visita con Tomasson oggi!
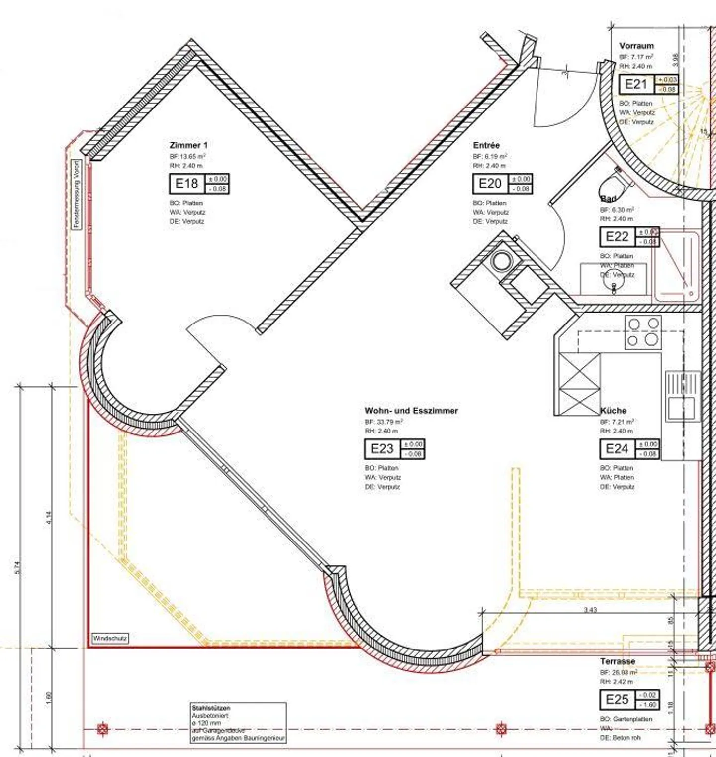
Appartamento giardino unico di 2,5 stanze a Engelberg
Descrizione
Nel mezzo dell'impressionante mondo montano di Engelberg, in una delle posizioni più soleggiate e ricercate del fondo valle, vi aspetta questo straordinario appartamento giardino di 2,5 stanze nella tranquilla zona residenziale di Neuschwändi. L'orientamento a sud non ostacolato vi offre una vista mozzafiato sul maestoso panorama alpino - un'esperienza abitativa che rende ogni giorno qualcosa di speciale. L'appartamento è perfetto per chi cerca una casa accogliente - sia come residenz...
Dettagli immobile
- Disponibile dal
- Su accordo
- Stanze
- 2.5
- Anno di costruzione
- 1979
- Anno di ristrutturazione
- 2019
- Superficie abitabile
- 74.3 m²
- Piano
- 11°
- Piani dell'edificio
- 3



