Appartamento in affitto - Feldstrasse 62, 8004 Zürich
Perché amerai questa proprietà
Elettrodomestici di alta gamma
Lavatrice privata nell'appartamento
Ampia terrazza panoramica condivisa
Organizza una visita
Prenota una visita con Laureta oggi!
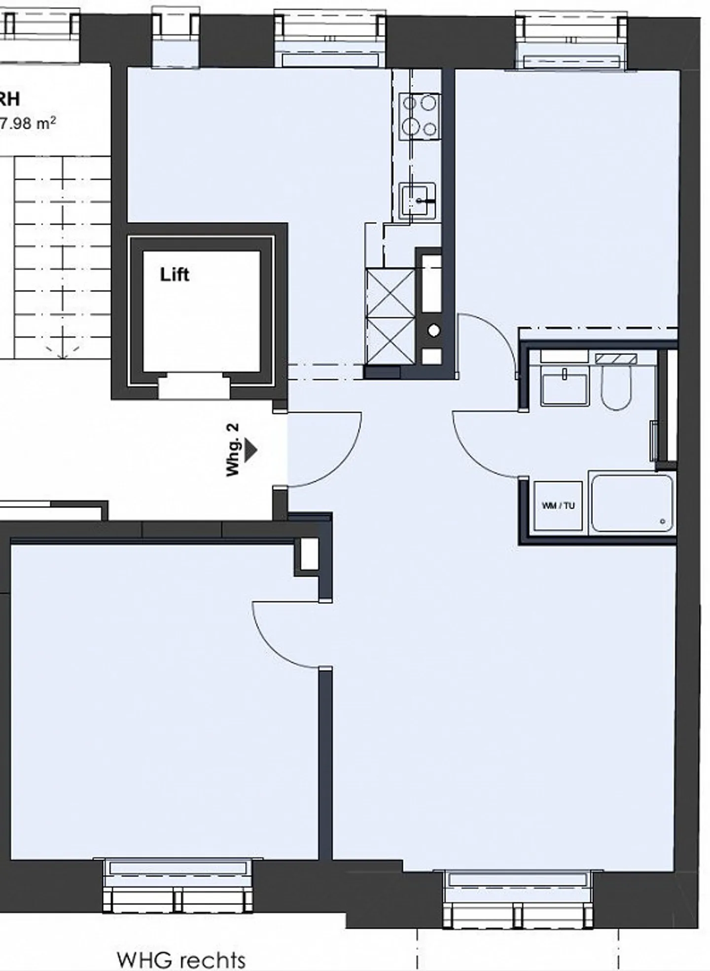
Bel Étage - Prima locazione
Questo appartamento di nuova creazione si trova al Belle Étage di un edificio storico accuratamente ristrutturato e combina uno stile di vita elegante con il comfort moderno.
Si distingue per le seguenti caratteristiche:
* Cucina con elettrodomestici di alta qualità
* Torre di lavaggio propria nell'appartamento
* Area soggiorno e cucina con parquet a spina di pesce di alta qualità
* Ampia terrazza sul tetto da condividere
* Ascensore nell'edificio
Abbiamo suscitato il tuo interesse? Non vediamo l'ora d...
Ripartizione dei costi
- Affitto netto
- CHF 3’880
- Costi aggiuntivi
- CHF 200
- Totale delle locazioni
- CHF 3’880
Dettagli immobile
- Disponibile dal
- Su accordo
- Stanze
- 3.5
- Superficie abitabile
- 67 m²
- Piano
- 1°



