Appartamento in affitto - Rue Du Rhône 61, 1204 Genève
Perché amerai questa proprietà
Vista mozzafiato sul lago
Soffitti alti con travi a vista
Ristrutturato con comfort moderni
Organizza una visita
Prenota una visita con Sara oggi!
Appartamento 36 stanze
Nel cuore di Ginevra, bell'appartamento con vista mozzafiato sul lago
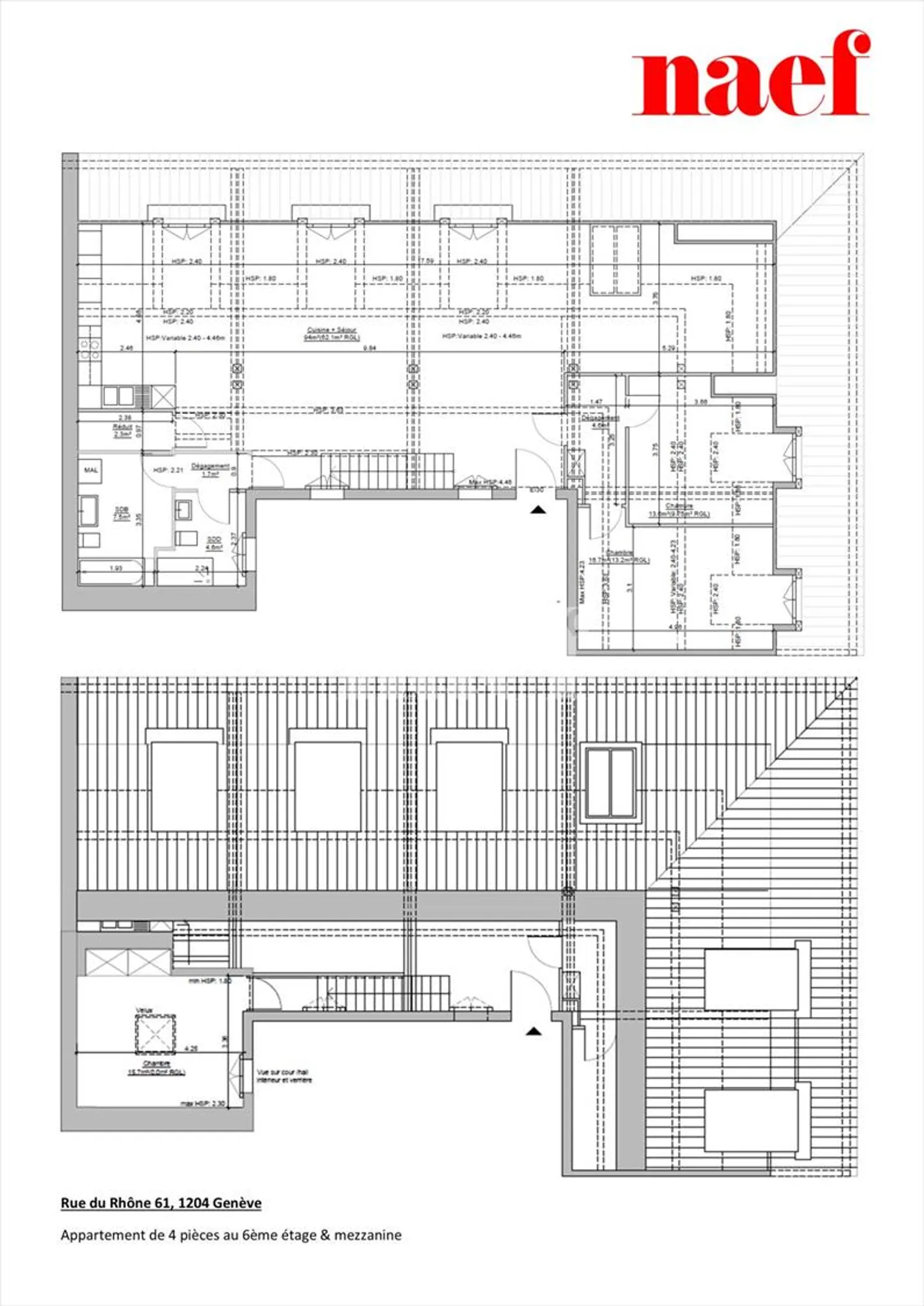
Situato nel cuore del centro di Ginevra, in Rue du Rhône, offriamo un ampio appartamento di 4 stanze all'ultimo piano di un bel palazzo con ascensore. Con una superficie utile di 165 m², si distingue per le altezze dei soffitti che raggiungono i 4,40 metri e la sua struttura a vista, che conferisce un fascino autentico e un'atmosfera unica. Potrete anche godere di una vista mozzafiato sul porto, sul jet d'eau e sul lago.
Attua...
Ripartizione dei costi
- Affitto netto
- CHF 5’800
- Costi aggiuntivi
- CHF 300
- Totale delle locazioni
- CHF 5’800
Dettagli immobile
- Disponibile dal
- Su accordo
- Stanze
- 36



