Appartamento in affitto - Ringstrasse 6, 8107 Buchs ZH
Perché amerai questa proprietà
Parquet nelle stanze
Balcone con vista
Parco giochi nelle vicinanze
Organizza una visita
Prenota una visita con Privera oggi!
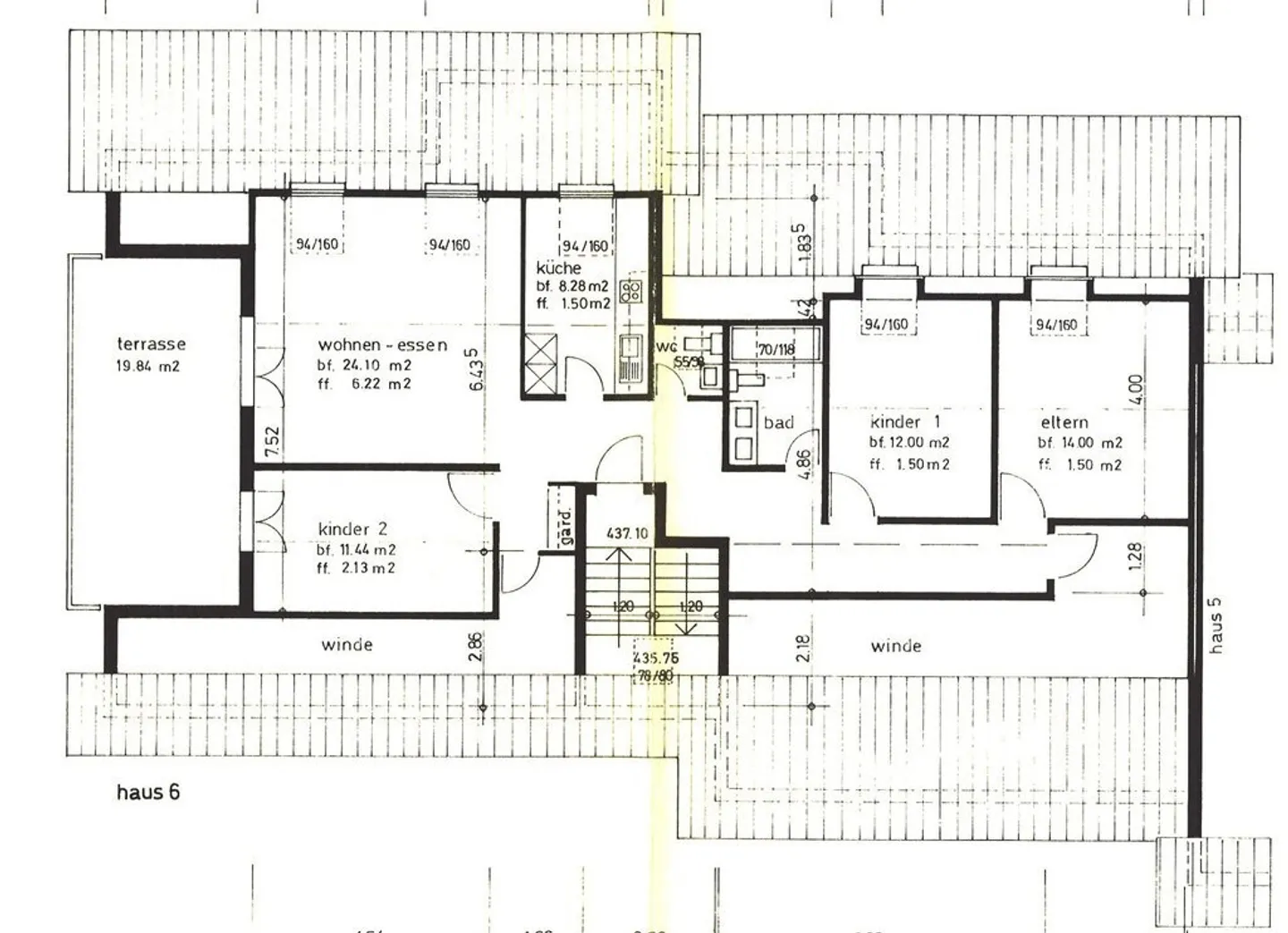
A partire dal 01.07.2026 affittiamo questo bell'appartamento di 4 stanze a Buchs Zurigo.
L'appartamento offre le seguenti comodità:
- Soggiorno e camere da letto con pavimento in parquet
- Bagno e WC separato con piastrelle beige chiaro
- Cucina con comfort standard, compresa lavastoviglie, forno e sufficiente spazio di stoccaggio per i tuoi utensili da cucina
- Balcone disponibile
- Comparto soffitta nell'appartamento
- Ampi spazi aperti nei dintorni con un grande parco giochi
- Se necessario, è possi...
Ripartizione dei costi
- Affitto netto
- CHF 2’090
- Costi aggiuntivi
- CHF 250
- Totale delle locazioni
- CHF 2’090
Dettagli immobile
- Disponibile dal
- Su accordo
- Stanze
- 4
- Anno di costruzione
- 1985
- Anno di ristrutturazione
- 2020
- Superficie abitabile
- 100 m²
- Piano
- 3°



