Appartamento in affitto - Mittlere Kapfstrasse 6, 9100 Herisau
Perché amerai questa proprietà
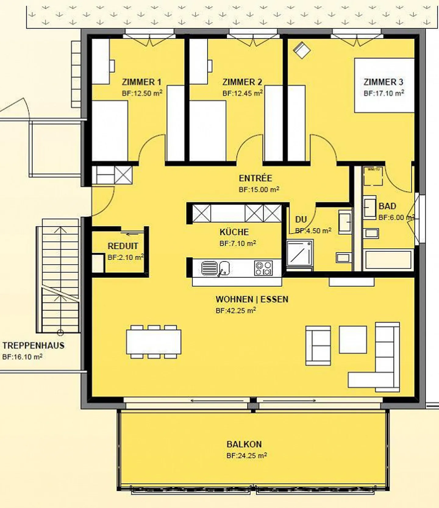
Layout luminoso e spazioso
Bagno moderno con vasca
Percorsi fitness nelle vicinanze
Organizza una visita
Prenota una visita con Carola oggi!
Vivere in una bella e centrale posizione
Punti salienti dell'appartamento e dei dintorni:
- Appartamento luminoso e spazioso con un grande balcone
- Bagno moderno con doccia e vasca da bagno
- Negozi nelle vicinanze
- Vitaparcours Herisau - Ideale per corsi di fitness e esercizio all'aperto
I punti più importanti in sintesi:
Animali domestici: Sì
Ascensore: Sì
Posti auto: Sì - Posto auto disponibile per CHF 130.- / mese
Si prega di notare che le immagini pubblicate rappresentano un appartamento di tipo simile.
Per un appuntamento di visita o ult...
Ripartizione dei costi
- Affitto netto
- CHF 2’050
- Costi aggiuntivi
- CHF 300
- Totale delle locazioni
- CHF 2’050
Dettagli immobile
- Disponibile dal
- Su accordo
- Stanze
- 4.5
- Superficie abitabile
- 116 m²
- Piano
- 2°



