Appartamento in affitto - Hauptstrasse 6, 8716 Schmerikon
Perché amerai questa proprietà
Appartamenti piccoli e moderni
Cucine spaziose Electrolux
Ampie aree esterne
Organizza una visita
Prenota una visita con Ines oggi!
Appartamenti ristrutturati e affascinanti in una posizione centrale
La storica casa Frohsinn si trova nel cuore di Schmerikon, proprio accanto alla stazione ferroviaria. Questa posizione centrale offre eccellenti collegamenti per professionisti, pendolari e studenti. I negozi e altre necessità quotidiane sono raggiungibili in pochi minuti.
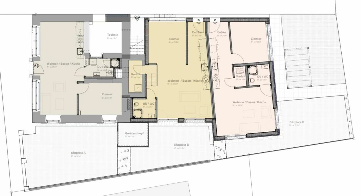
La casa Frohsinn sta riprendendo vita: A partire da febbraio 2026, qui verranno creati moderni piccoli appartamenti, che uniscono il fascino dei muri storici con il comfort abitativo contemporaneo.
Al piano terra verranno costru...
Ripartizione dei costi
- Affitto netto
- CHF 1’700
- Costi aggiuntivi
- CHF 150
- Totale delle locazioni
- CHF 1’700
Dettagli immobile
- Disponibile dal
- 01.02.2026
- Stanze
- 2.5
- Anno di ristrutturazione
- 2026
- Superficie abitabile
- 42 m²
- Piano
- Terra
- Piani dell'edificio
- 3



