Appartamento in affitto - Chemin Des Cours 6, 1630 Bulle
Perché amerai questa proprietà
Vista montagna mozzafiato
Ampia area verde
Vicino al centro città
Organizza una visita
Prenota una visita con Marie oggi!
L'apertura a est offre una vista magnifica sulle montagne.
Un ampio spazio erboso si trova alla base dell'edificio per godere appieno del verde, pur essendo in città.
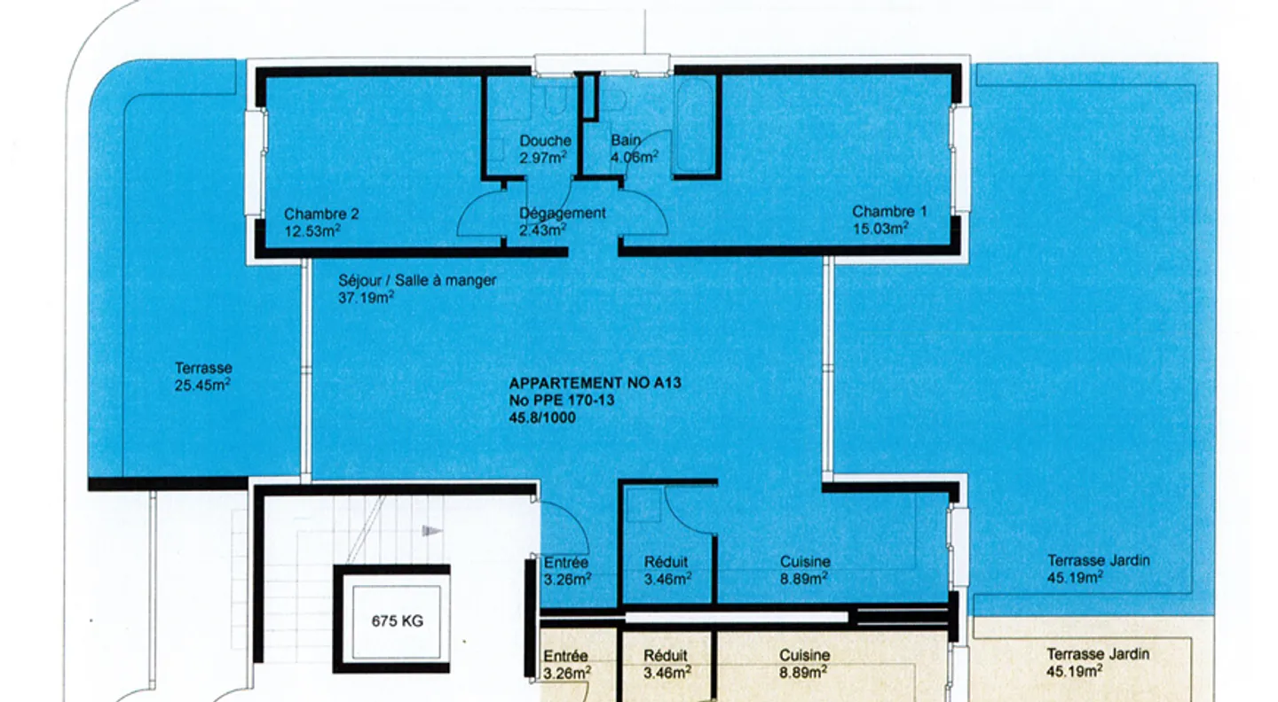
Questo alloggio è composto come segue:
- Ingresso con armadi a muro
- Cucina completamente attrezzata parzialmente aperta
- Soggiorno
- 2 camere da letto, una con accesso al bagno/WC
- Bagno/doccia/WC
- Ripostiglio con colonna di lavaggio
- 2 terrazze
- Cantina
Ripartizione dei costi
- Affitto netto
- CHF 2'040
- Costi aggiuntivi
- CHF 300
- Totale delle locazioni
- CHF 2'040
Dettagli immobile
- Disponibile dal
- Su accordo
- Stanze
- 3.5



