Appartamento ammobiliato in affitto - Kanzleistrasse 57, 8405 Winterthur
Perché amerai questa proprietà
Ampio balcone per relax
Cucina moderna con elettrodomestici
Vicino alla S-Bahn per viaggi facili
Organizza una visita
Prenota una visita con Tarcisi oggi!
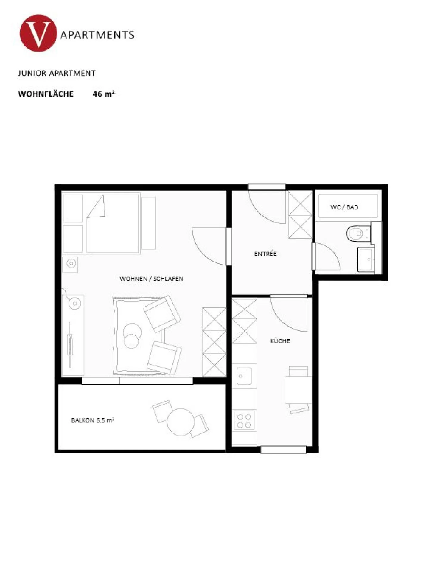
A Winterthur Seen, affittiamo un appartamento 1.5 camere arredato di alta qualità con 46 m2 di superficie abitabile. L'appartamento si trova in una proprietà completamente ristrutturata proprio accanto alla stazione S-Bahn Winterthur Seen. Grandi finestre garantiscono una stanza inondata di luce con un'atmosfera abitativa piacevole. L'appartamento dispone di un ampio balcone, una grande vasca da bagno con doccia, una cucina separata e moderna, nonché di una pianta individuale. Con questo apparta...
Dettagli immobile
- Disponibile dal
- Su accordo
- Stanze
- 1.5
- Bagni
- 1
- Superficie abitabile
- 46 m²
- Superficie balcone
- 6 m²
- Piano
- 1°



