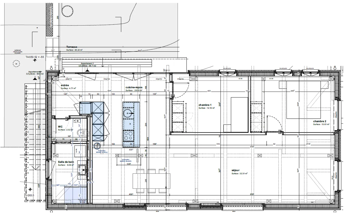
Bell'appartamento atipico di 3,5 locali al piano terra
Perché amerai questa proprietà
Fornitura d'acqua naturale
Terrazze private spaziose
Cucina moderna aperta
Organizza una visita
Prenota una visita oggi!
Questo accogliente e luminoso alloggio offre un ambiente di vita piacevole, ideale per sentirsi bene ogni giorno.
Situato nel cuore della natura, vicino al fiume, questo appartamento costruito con materiali di qualità consente di godere di un ambiente tranquillo rimanendo vicino ai servizi e ai trasporti. Un bel equilibrio tra comfort e serenità.
Un altro raro e prezioso vantaggio, l'edificio composto da 2 appartamenti è alimentato da una sorgente naturale, il che significa che gli inquilini n...
Ripartizione dei costi
- Affitto netto
- CHF 2'100
- Costi aggiuntivi
- CHF 200
- Totale delle locazioni
- CHF 2'100
Dettagli immobile
- Disponibile dal
- Su accordo
- Stanze
- 3.5
- Superficie abitabile
- 100 m²
- Superficie utilizzabile
- 100 m²
- Piano
- Terra



