Appartamento in affitto - Wilmattstrasse 50, 4106 Therwil
Perché amerai questa proprietà
Ampio balcone su due livelli
Cucina aperta moderna
Spazio abitativo pet-friendly
Organizza una visita
Prenota una visita oggi!
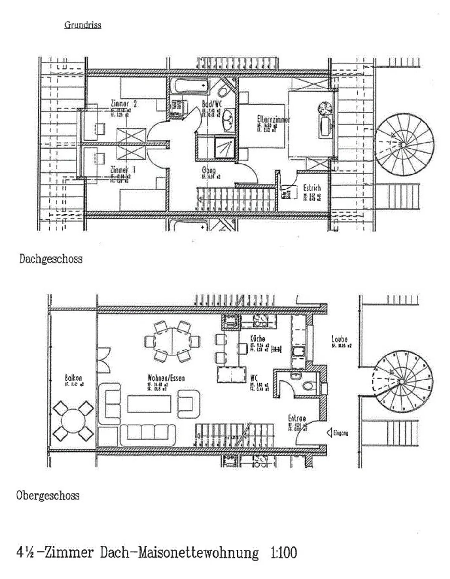
Appartamento 4.5 stanze
Bell'appartamento 4.5 stanze con un grande balcone su due piani
L'appartamento è disponibile per l'affitto dal 1 ottobre 2025 o su accordo ed è attrezzato come segue:
- Cucina aperta con lavastoviglie, piano cottura in vetroceramica e grande frigorifero
- Pavimenti in parquet e piastrelle luminose
- Bagno con vasca, doccia, doppio lavabo e WC
- WC separato al piano inferiore
- Lavatrice nel bagno
- Riscaldamento a pavimento
- Grande balcone
- Cantina
- Animali domestici ammessi
I posti auto possono essere ...
Ripartizione dei costi
- Affitto netto
- CHF 2’290
- Costi aggiuntivi
- CHF 250
- Totale delle locazioni
- CHF 2’290
Dettagli immobile
- Disponibile dal
- Su accordo
- Stanze
- 4.5
- Superficie abitabile
- 108 m²



