Appartamento in affitto - Seebnerstrasse 5, 8185 Winkel
Perché amerai questa proprietà
Ampio spazio esterno
Elegante parete in pietra
Sistema di domotica intelligente
Organizza una visita
Prenota una visita con Suter oggi!
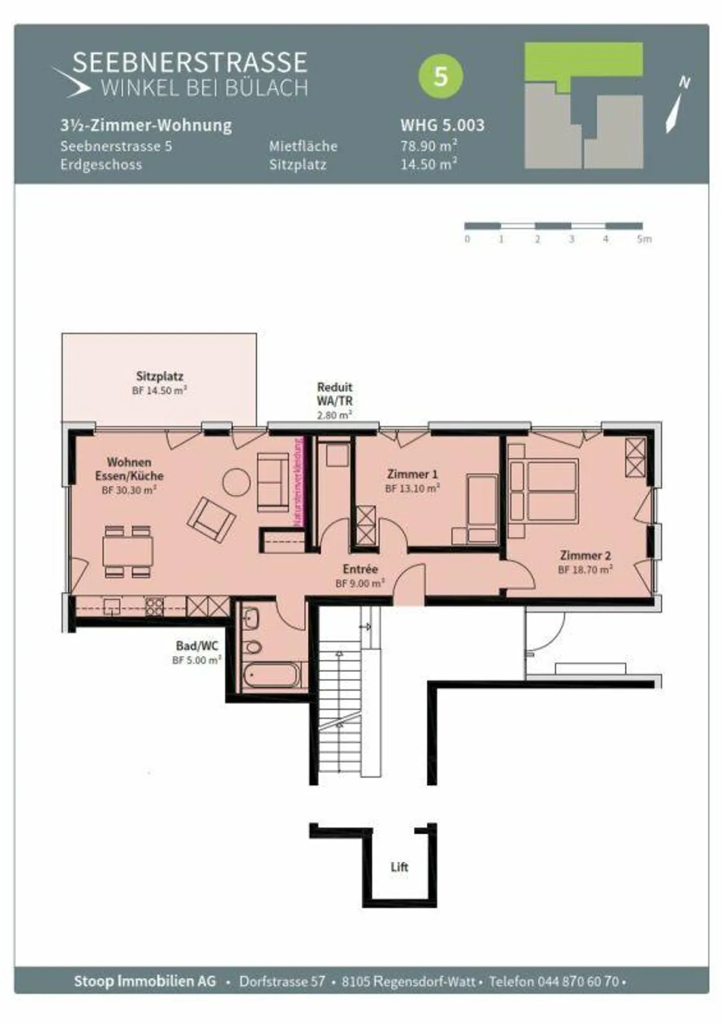
Appartamento da giardino soleggiato da sogno nel verde!
Stai cercando un appartamento moderno al piano terra in un ambiente curato e moderno a Winkel? Questo appartamento di alta qualità offre una combinazione perfetta di design esclusivo, attrezzature all'avanguardia e comfort lussuoso - un'oasi per sentirsi bene, perfettamente situata vicino all'area ricreativa.
I punti salienti in sintesi:
- Area salotto accogliente: Ampia area salotto per ore di relax all'aperto
- Elegante parete in pietra nel soggiorno: Crea un punto forte nobile e conferisce alla ...
Dettagli immobile
- Disponibile dal
- Su accordo
- Stanze
- 3.5
- Anno di costruzione
- 2017
- Superficie abitabile
- 80 m²
- Piano
- Terra



