Appartamento in affitto - Heilbachrain 5, 3250 Lyss
Perché amerai questa proprietà
Finiture di alta qualità
Design cucina aperta
Terrazza giardino privata
Organizza una visita
Prenota una visita con Abomo oggi!
La tua nuova casa a Lyss?
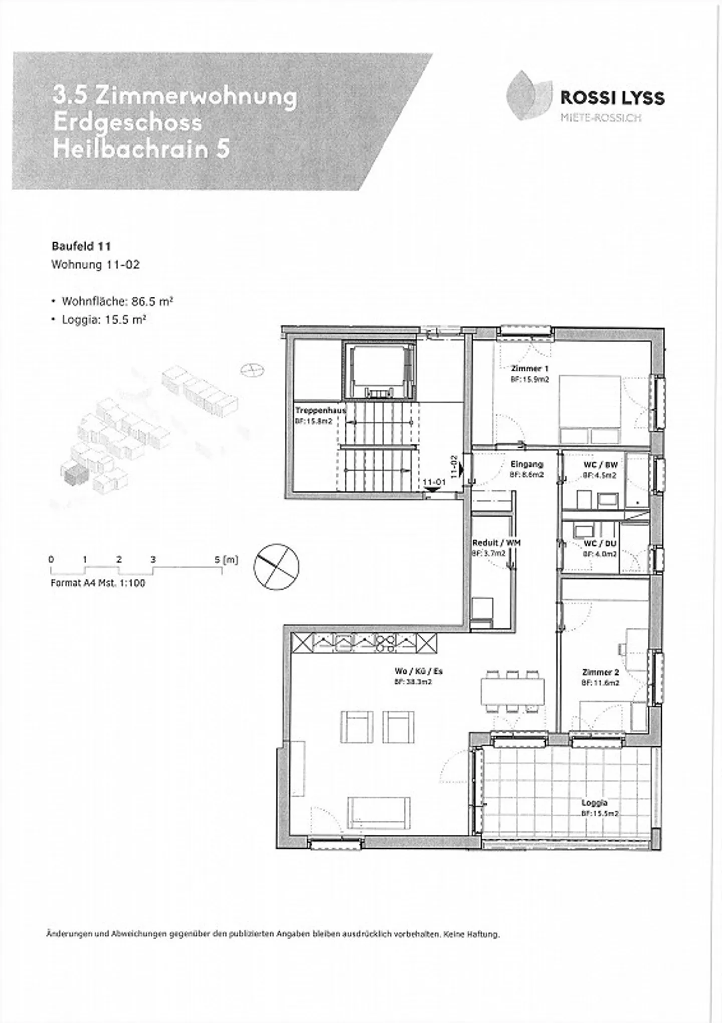
L'appartamento spazioso di 3,5 stanze situato in una zona verde e tranquilla è dotato di:
- Standard di alta qualità
- Cucina abitabile aperta
- Bagno/WC e doccia/WC
- Ripostiglio con lavatrice/asciugatrice propria
- Posto a sedere in giardino
- Cantina
1 posto auto nel garage sotterraneo può essere affittato aggiuntivamente per CHF 120.00.
Foto di un appartamento simile.
Interessato? Chiamaci e fissa un appuntamento per una visita!
Ripartizione dei costi
- Affitto netto
- CHF 2’032
- Costi aggiuntivi
- CHF 260
- Totale delle locazioni
- CHF 2’032
Dettagli immobile
- Disponibile dal
- Su accordo
- Stanze
- 3.5
- Superficie abitabile
- 87 m²
- Piano
- Terra



