Appartamento in affitto - Stutzstrasse 4a, 6005 St. Niklausen LU
Organizza una visita
Prenota una visita oggi!
Bellissimo appartamento di 4.5 locali con vista sul Lago dei Quattro Cantoni
Nahe an der schönen Luzerner Innenstadt mit dem Vierwaldstättersee und dem Bireggwald direkt vor der Haustür, treffen Sie rund um den Dittli-Park auf eine Umgebung zum Geniessen an.
An hervorragender Lage in Luzern vermieten wir per 01.08.2026 eine 4.5-Zimmerwohnung im 2. OG an ruhiger und privilegierter Lage.
Die Wohnung überzeugt mit folgenden Vorzügen:
- Wohn-, Küchen- und Schlafbereich durchgehend Parkett
- Bäder mit Platten in modern minimalistischem Stil
- Helle und lichtdurchflutete Räume für...
Ripartizione dei costi
- Affitto netto
- CHF 3'140
- Costi aggiuntivi
- CHF 370
- Totale delle locazioni
- CHF 3'140
Dettagli immobile
- Disponibile dal
- Su accordo
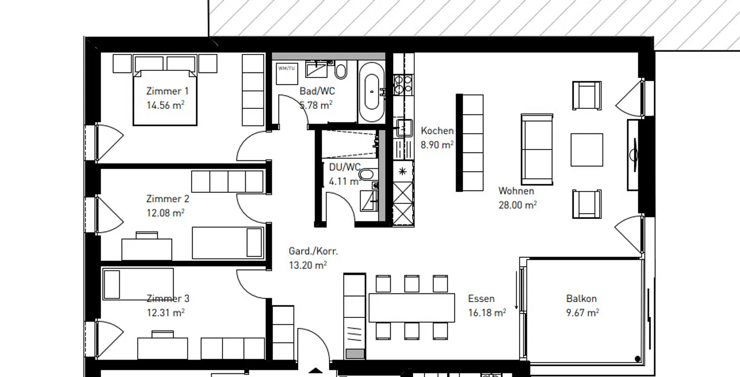
- Stanze
- 4.5
- Anno di costruzione
- 2017
- Superficie abitabile
- 115 m²
- Piano
- 2°



