Appartamento in affitto - Laubenstrasse 4a, 9444 Diepoldsau
Perché amerai questa proprietà
Balcone esposto a sud
Cucina aperta luminosa
In zona adatta alle famiglie
Organizza una visita
Prenota una visita con Hannah oggi!
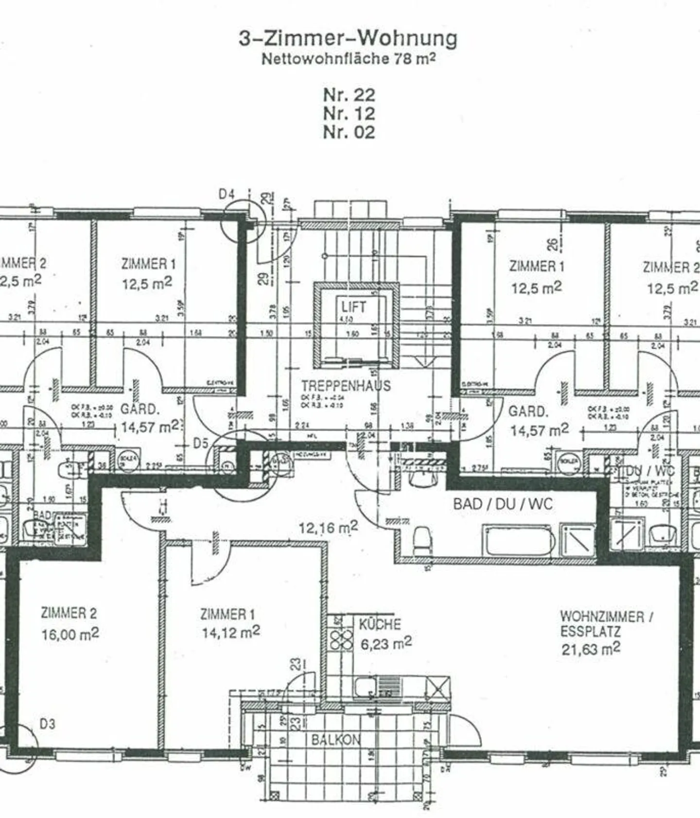
Luminoso, centrale, adatto alle famiglie - appartamento con 3 camere...
Benvenuti nella vostra nuova casa!
Questo accogliente appartamento con 3 camere da letto colpisce per la sua posizione centrale eppure tranquilla a Diepoldsau. Si trova in un quartiere adatto alle famiglie, e il centro del paese con una varietà di opzioni di shopping, scuole e collegamenti ai mezzi pubblici è facilmente raggiungibile a piedi.
L'appartamento presenta una cucina luminosa. L'intero appartamento è dotato di parquet in legno massello. Una torre di lavaggio privata all'interno dell'appa...
Ripartizione dei costi
- Affitto netto
- CHF 1’575
- Costi aggiuntivi
- CHF 150
- Totale delle locazioni
- CHF 1’575
Dettagli immobile
- Disponibile dal
- Su accordo
- Stanze
- 3
- Anno di costruzione
- 1997
- Superficie abitabile
- 96 m²
- Piano
- 1°
- Piani dell'edificio
- 3



