Appartamento in affitto - Bahnhofstrasse 43, 4950 Huttwil
Perché amerai questa proprietà
Cucina aperta spaziosa
Loggia soleggiata per relax
Opzioni di shopping in loco
Organizza una visita
Prenota una visita con Wincasa oggi!
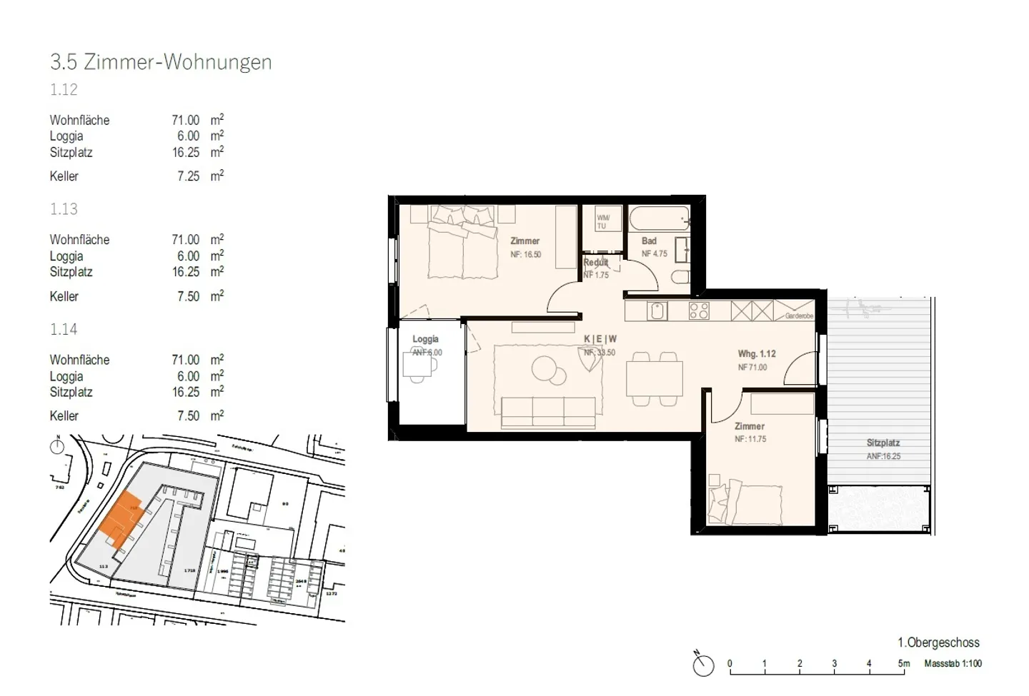
Appartamento moderno nella migliore posizione vicino alla stazione
Affittiamo, su accordo, un appartamento moderno e attraente di 3½ locali direttamente presso la stazione. L'appartamento si distingue per i seguenti vantaggi:
- Pianta ben pensata e versatile
- Cucina spaziosa, luminosa e aperta con vetroceramica e lavastoviglie
- Materiali moderni e di alta qualità
- Pavimento in parquet in tutto l'appartamento
- Doccia/WC
- Lavatrice nell'appartamento, locale di asciugatura al piano
- Area salotto nel cortile e loggia soleggiata
- Grande cantina con collegamento ele...
Ripartizione dei costi
- Affitto netto
- CHF 1’430
- Costi aggiuntivi
- CHF 180
- Totale delle locazioni
- CHF 1’430
Dettagli immobile
- Disponibile dal
- Su accordo
- Stanze
- 3.5
- Anno di costruzione
- 2021
- Superficie abitabile
- 71 m²
- Piano
- 1°



