1 / 10

Duplex in affitto - Missionsstrasse 41, 4055 Basel

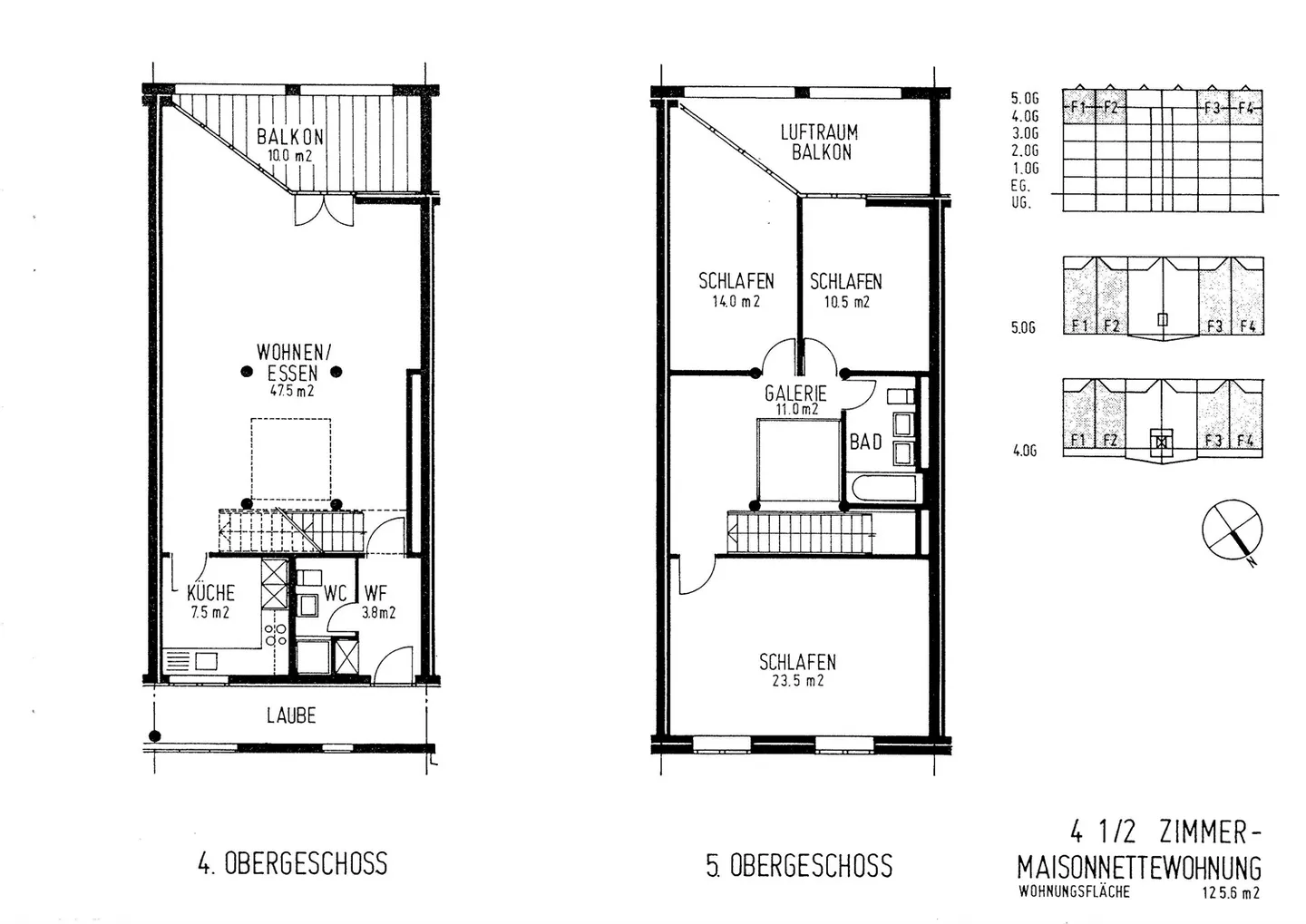
4.5 rooms • 126 m² • 4° piano
CHF 2’620.-
CHF 250 m² / year

Perché amerai questa proprietà

Parquet elegante

Ampio balcone

Cucina moderna attrezzata

Organizza una visita

Prenota una visita oggi!

Wincasa AG
Questa descrizione è stata tradotta automaticamente da Tedesco.

Appartamento duplex da sogno

Affittiamo questo esclusivo appartamento duplex di 4,5 stanze a partire dal 01.09.2025 o su accordo, con il seguente standard di finitura:

- Cucina con piano cottura in vetroceramica e lavastoviglie

- Accogliente soggiorno e sala da pranzo con pavimento in parquet

- Ampio bagno/WC con doppio lavabo

- Doccia separata con WC

- Camere con pavimento in parquet

- Aree umide con pavimentazione in piastrelle

- Balcone

- Cantina

Si prega di notare che le immagini mostrate presentano lo standard di finitura di un...

Dettagli immobile

Disponibile dal
Su accordo
Stanze
4.5
Anno di costruzione
1989
Superficie abitabile
126
Piano

Caratteristiche

Giardino
Balcone

Agenzia

Wincasa AG
Ref: 00706.01.1405

Località

Missionsstrasse 41, 4055 Basel

Fonti