Appartamento in affitto - Mittelstrasse 40, 3012 Bern
Perché amerai questa proprietà
Vicino a negozi
Ottimo accesso ai trasporti
Cucina moderna con lavastoviglie
Organizza una visita
Prenota una visita oggi!
Vivere in un quartiere urbano vivace
L'appartamento moderno si trova in un vivace quartiere cittadino con negozi nelle immediate vicinanze. È ideale per coppie che apprezzano un accesso ottimale ai mezzi pubblici.
Per la tua qualità abitativa:
- Cucina con vetroceramica e lavastoviglie
- Pavimento in parquet nel soggiorno/camera da letto e in cucina
- Pavimento piastrellato nel bagno
- Bagno con vasca
- Balcone
- Cantina
- Ascensore
Le foto sono di un appartamento di tipo simile.
Interessato? Allora vale la pena una visita.
Ripartizione dei costi
- Affitto netto
- CHF 1'386
- Costi aggiuntivi
- CHF 180
- Totale delle locazioni
- CHF 1'386
Dettagli immobile
- Disponibile dal
- 01.06.2026
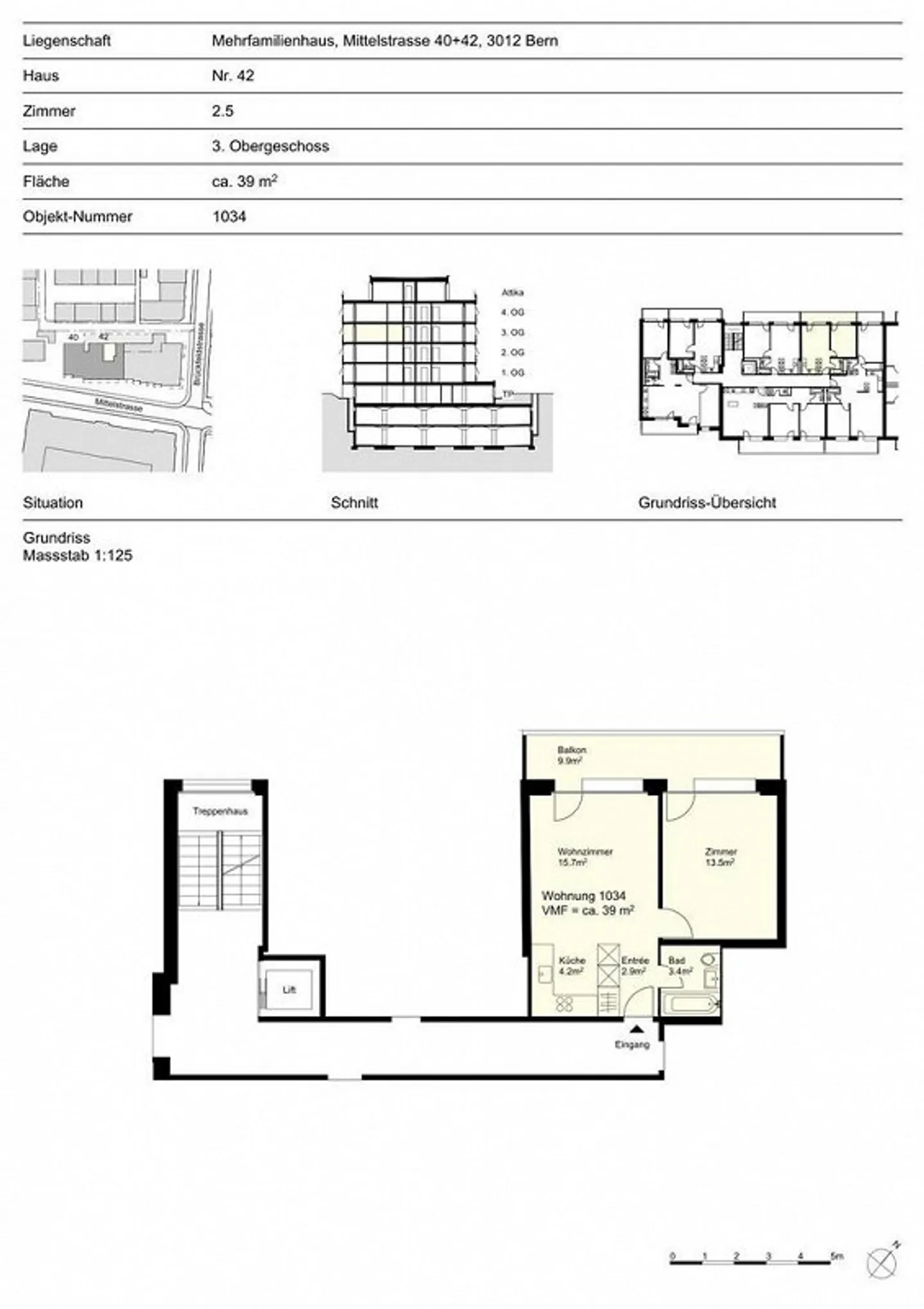
- Stanze
- 2.5
- Anno di costruzione
- 1977
- Superficie abitabile
- 40 m²
- Piano
- 3°



