Appartamento in affitto - Meierhofweg 4, 5616 Meisterschwanden
Perché amerai questa proprietà
Interni ristrutturati con stile
Ingresso privato per privacy
Posizione centrale vicino al lago
Organizza una visita
Prenota una visita con Konrad oggi!
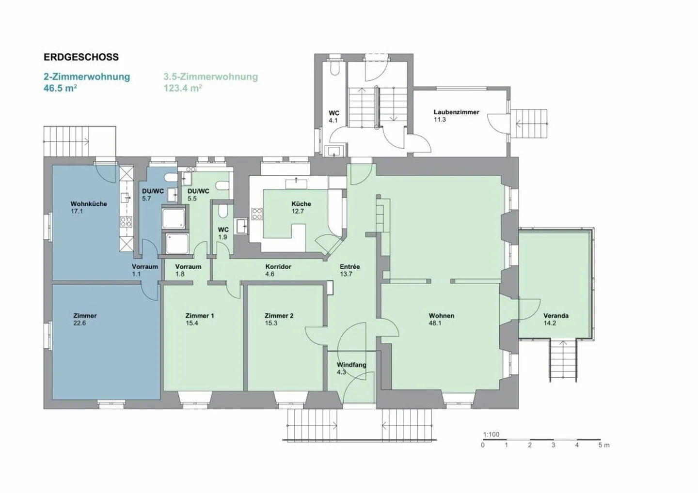
Prima occupazione in una villa storica: Incantevole appartamento con 2 camere da letto con posti a sedere...
Il fascino storico incontra il comfort moderno della vita
Scegli la tua casa in una villa ristrutturata con stile nel cuore di Meisterschwanden - un comune fiscalmente vantaggioso con un'alta qualità della vita sul lago Hallwil.
La posizione centrale impressiona per le brevi distanze verso i negozi (Coop), la gastronomia e il tempo libero locale intorno al lago.
Edificio: La ristrutturazione completa della facciata, compreso il cambio delle finestre, è quasi completata. La ristrutturazione principa...
Ripartizione dei costi
- Affitto netto
- CHF 1'590
- Costi aggiuntivi
- CHF 170
- Totale delle locazioni
- CHF 1'590
Dettagli immobile
- Disponibile dal
- Su accordo
- Stanze
- 2
- Anno di costruzione
- 1870
- Anno di ristrutturazione
- 2026
- Superficie abitabile
- 48 m²
- Piano
- Terra
- Piani dell'edificio
- 3



