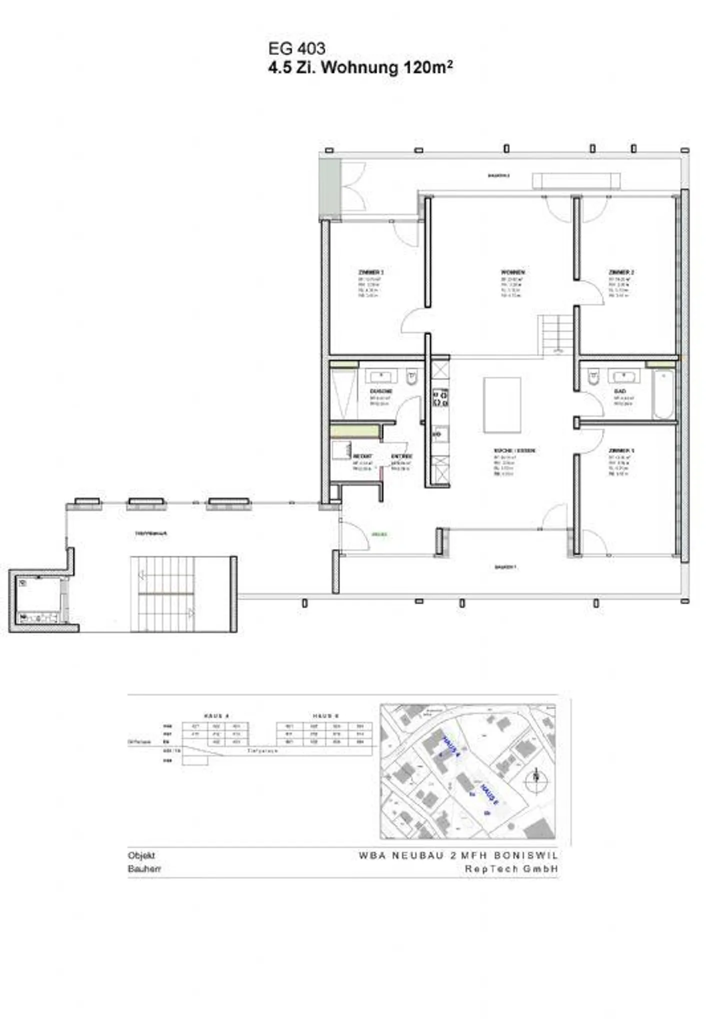
Appartamento in affitto - Dörflistrasse 4, 5706 Boniswil
Perché amerai questa proprietà
Costruzione sostenibile
Finestre panoramiche
Ampia area balcone
Organizza una visita
Prenota una visita con Rehmann oggi!
Prima locazione | immerso nella natura | vista lago
SITO WEB DEL PROGETTO
https://www.seeweid-boniswil.ch
ASPETTI FINANZIARI
Appartamenti di 4 ½ locali (piano terra - 2° piano)
- Affitto netto da CHF 2'420.00
- Spese accessorie acconto CHF 270.00
- Posto auto CHF 140.00
PUNTI SALIENTI
- Edificio di nuova costruzione (prima locazione)
- Costruzione di alta qualità e sostenibile
- Finestre panoramiche in legno e metallo con vista sul lago di Hallwil
- Altezza dei soffitti al piano terra da 2,40 m a 3,90 m
- Ingresso con guardaroba e armadi a muro
- Balcone/logg...
Ripartizione dei costi
- Affitto netto
- CHF 2’690
- Costi aggiuntivi
- CHF 270
- Totale delle locazioni
- CHF 2’690
Dettagli immobile
- Disponibile dal
- 01.10.2025
- Stanze
- 4.5
- Anno di costruzione
- 2025
- Superficie abitabile
- 120 m²



