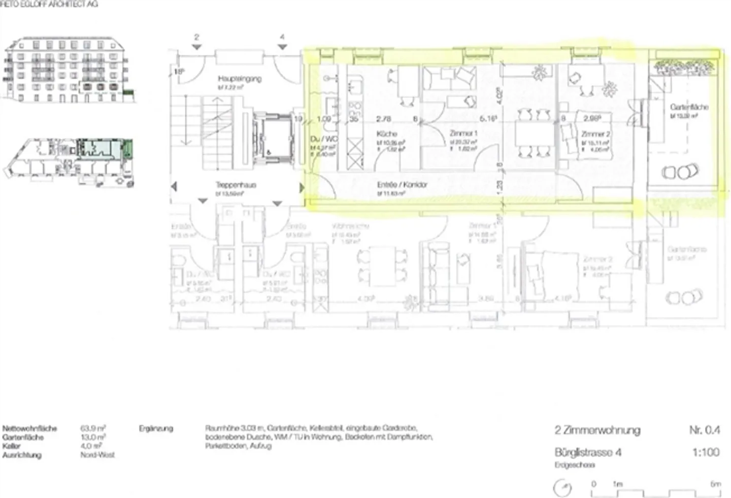
Appartamento in affitto - Bürglistrasse 4, 9000 St. Gallen
Perché amerai questa proprietà
Spazio giardino soleggiato
Ristrutturazioni di alta qualità
Cucina spaziosa attrezzata
Organizza una visita
Prenota una visita oggi!
Appartamento luminoso di 2,5 stanze con area giardino nel bel quartiere dei musei
Descrizione dell'appartamentoIn affitto dal 01.06.2026 elegante appartamento di 2,5 stanze al piano terra con area giardino in Bürglistrasse 4 a San Gallo. L'edificio plurifamiliare è stato ristrutturato in modo generoso e di alta qualità nel 2022. L'appartamento colpisce per i seguenti dettagli: Soggiorno affascinante con pavimento in parquet di prima classe
Cucina spaziosa con forno/steamer, vetroceramica, lavastoviglie e grande frigorifero
Propria lavatrice combinata
Camera da letto luminosa ...
Dettagli immobile
- Disponibile dal
- Su accordo
- Stanze
- 2.5



