Appartamento ammobiliato in affitto - Tarì-Cippo 3b, 6944 Cureglia
Perché amerai questa proprietà
Ampia terrazza coperta
Costruzione ecologica
Stazione di ricarica per auto elettriche
Organizza una visita
Prenota una visita con Casati oggi!
Cureglia, affitto 3.5 locali con terrazzo
RESIDENZA SQUARE A CUREGLIA
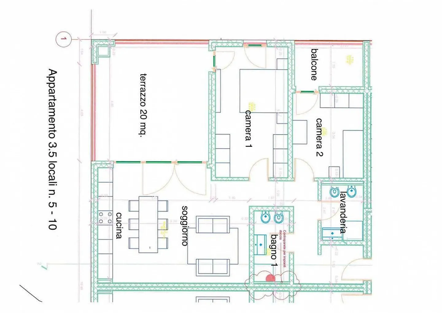
Affittiamo recente appartamento di 3.5 locali con terrazzo.
L'appartamento è disposto su unico livello per un totale di 90 mq suddivisi come segue:
ingresso con armadio, soggiorno luminoso con cucina a vista ed ampio terrazzo coperto, camera matrimoniale, seconda camera con balcone, bagno con doccia e predisposizione lavanderia e secondo bagno anch'esso con doccia.
La Residenza Square è una recente piccola palazzina edificata nel 2019 composta da soli 10 appartamenti di...
Dettagli immobile
- Disponibile dal
- Su accordo
- Stanze
- 3.5
- Superficie abitabile
- 95 m²



