1 / 8

Appartamento in affitto - Stockweg 3a, 2557 Studen BE

3.5 rooms • 2° piano
CHF 1’460.-
-

Perché amerai questa proprietà

Vista verde mozzafiato

Moderne attrezzature da cucina

Spazio balcone accogliente

Organizza una visita

Prenota una visita oggi!

Niederer AG mobil in immobilien
Questa descrizione è stata tradotta automaticamente da Tedesco.

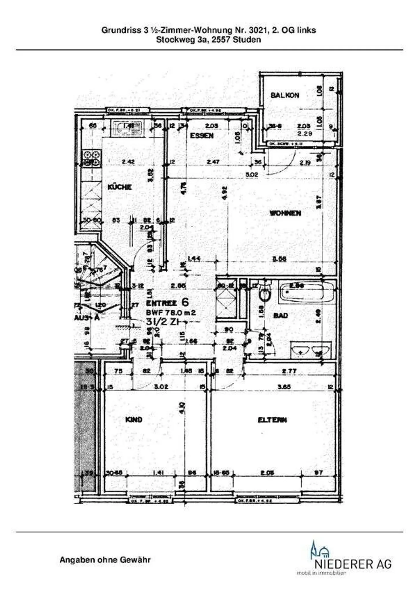
Appartamento 3.5 locali con vista sul verde

Affittiamo un bellissimo appartamento di 3.5 locali (78 m2) al 2° piano. La proprietà confina direttamente con una zona agricola, offrendoti una vista libera sul verde.

L'appartamento è dotato come segue:

- Cucina e bagno con piastrelle

- Soggiorno e camera da letto/corridoio con laminato

- Piano cottura in ceramica

- Lavastoviglie

- Bagno con due lavandini

- Armadi a muro

- Balcone

Un posto auto può essere affittato per CHF 100.- al mese.

Per un appuntamento di visita senza impegno, contattaci al 062 ...

Dettagli immobile

Disponibile dal
Su accordo
Stanze
3.5
Anno di costruzione
1989
Piano

Caratteristiche

Balcone
Parcheggio
Vista libera
Tv via cavo

Agenzia

Niederer AG mobil in immobilien
Indirizzo:Unterdorfstrasse 5, 3072, Ostermundigen
Ref: 28200.3021

Località

Stockweg 3a, 2557 Studen BE

Fonti