1 / 6

Studio in affitto - Im Zentrum 3A, 9300 Wittenbach

1 rooms • 39.25 m² • Piano terra
CHF 795.-
CHF 243 m² / year

Perché amerai questa proprietà

Camere spaziose di 30 m²

Bagno privato in ogni camera

Posizione centrale con servizi

Organizza una visita

Prenota una visita oggi!

Wincasa SA - Siège
Questa descrizione è stata tradotta automaticamente da Tedesco.

Essere flessibili e vivere a buon mercato!

Stai ancora cercando una camera economica e non vuoi rinunciare a nulla? Qui troverai ciò che stai cercando:

Concetto

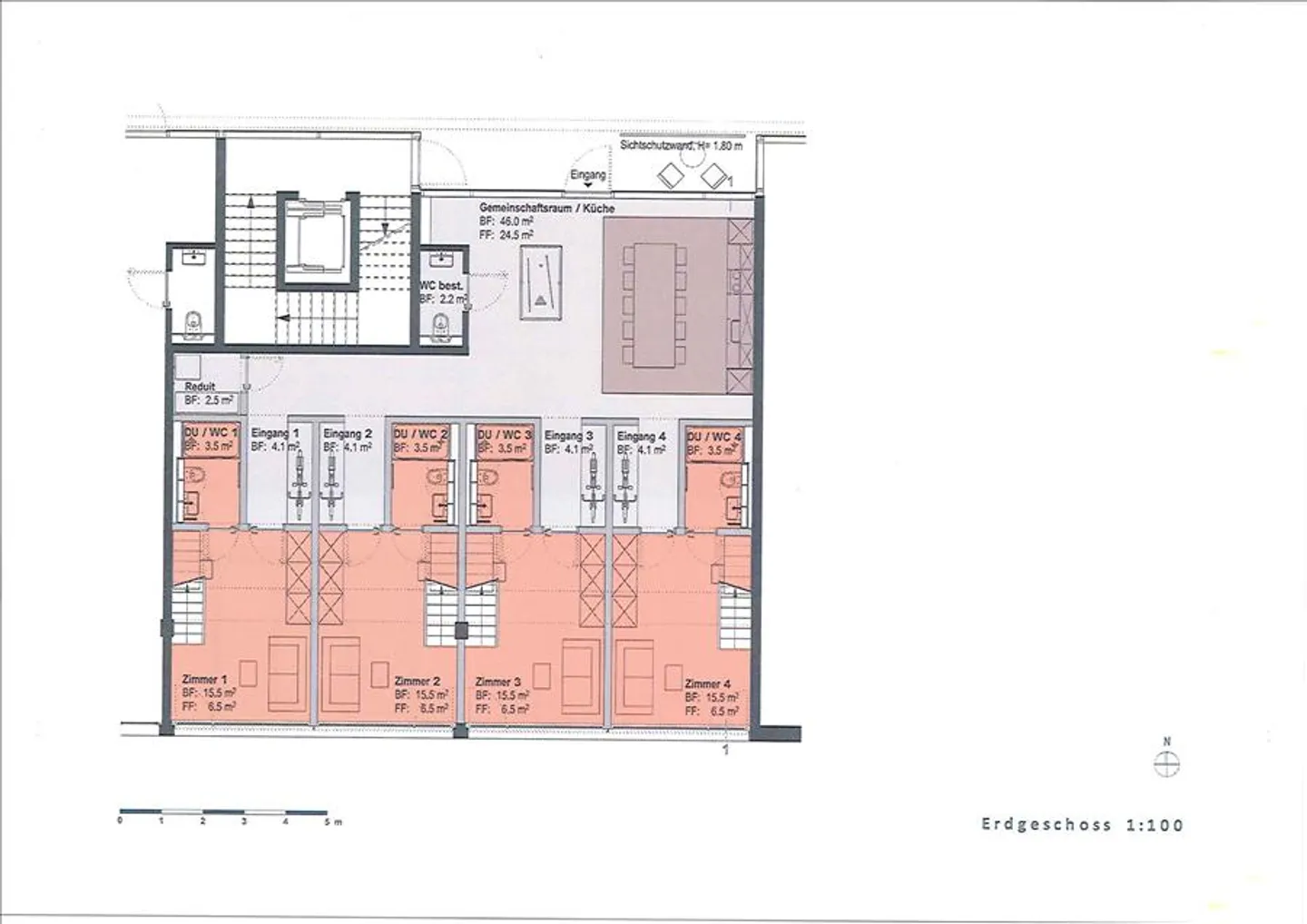
Vivere insieme significa vivere esperienze insieme! Quattro camere a due piani condividono una cucina con un grande tavolo da pranzo e sedie.

La lavatrice e l'asciugatrice sono nell'appartamento.

Dotazioni

Tutte le camere sono di circa 30 m² e dispongono di un bagno privato con doccia / WC. L'area notte è accessibile tramite una scala. L'arredamento include un letto accogliente, un a...

Dettagli immobile

Disponibile dal
Su accordo
Stanze
1
Anno di costruzione
2008
Superficie abitabile
39.25
Piano
Terra

Caratteristiche

Garage
Parcheggio
Ascensore
Vecchio edificio
Tv via cavo
Adatto ai bambini
Animali ammessi

Punti di interesse nelle vicinanze

Trasporto pubblico - 0.1 km
Commercio - 0 km
Asilo - 0 km
Scuola elementare - 0 km
Scuola superiore - 0 km

Agenzia

Wincasa SA - Siège
Indirizzo:St. Leonhard-Str. 399001 St. GallenSwitzerland

Località

Im Zentrum 3A, 9300 Wittenbach

Fonti