Appartamento in affitto - Hubstrasse 39, 9500 Wil SG
Perché amerai questa proprietà
Cucina luminosa con zona pranzo
Balcone esposto a sud
Scuole e centro sportivo vicini
Organizza una visita
Prenota una visita con Marina oggi!
Posizione centrale ma tranquilla
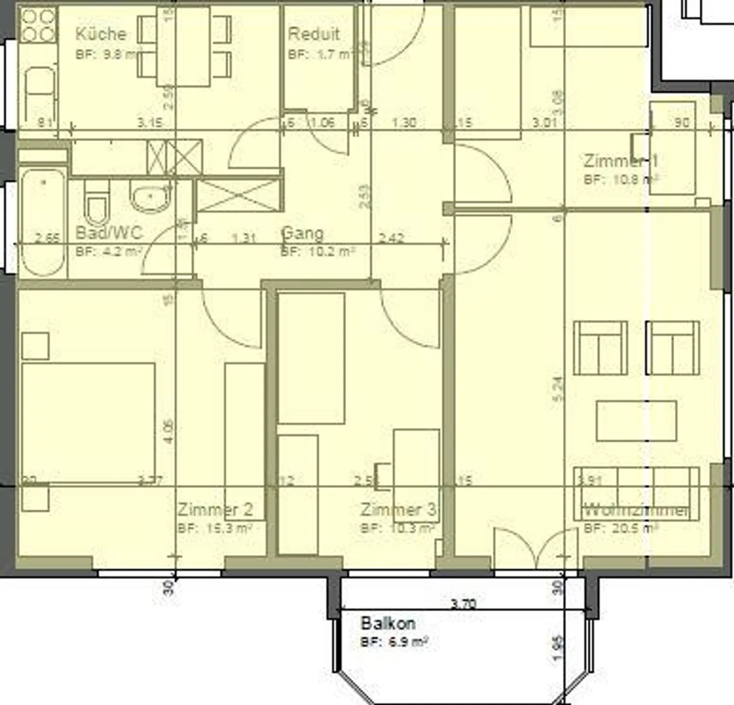
Dietro la stazione ferroviaria di Wil, affittiamo questo appartamento pratico, che offre il seguente standard:
- Pavimenti in laminato di rovere e Novilon
- Cucina luminosa con spazio per un tavolo da pranzo
- Bagno/WC con finestra
- Ripostiglio
- Armadio a muro nel corridoio
- Balcone esposto a sud
- Posti auto possono essere affittati per CHF 120.- al mese
Le scuole e il centro sportivo di Bergolz si trovano anche nelle immediate vicinanze.
Abbiamo suscitato il tuo interesse? Allora non vediamo l'ora d...
Ripartizione dei costi
- Affitto netto
- CHF 1’600
- Costi aggiuntivi
- CHF 270
- Totale delle locazioni
- CHF 1’600
Dettagli immobile
- Disponibile dal
- Su accordo
- Stanze
- 4
- Anno di costruzione
- 1963
- Superficie abitabile
- 83 m²
- Piano
- 3°
- Piani dell'edificio
- 1



