Appartamento in affitto - Schützenstrasse 38w, 9100 Herisau
Perché amerai questa proprietà
Elettrodomestici a induzione
Lavanderia privata
Parco giochi nelle vicinanze
Organizza una visita
Prenota una visita con Loosli oggi!
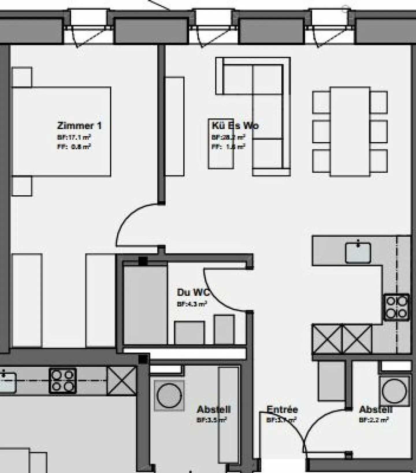
Appartamento moderno 2.5 locali
Questo nuovo appartamento 2.5 locali si trova al 2° piano in Schützenstrasse 38o a Herisau. 55 m2 invitano a vivere e godere.
Approfittate dei seguenti vantaggi di questo appartamento:
- Cucina con piano cottura a induzione, forno, lavastoviglie, frigorifero con congelatore separato
- Bagno con doccia, WC, lavabo
- Armadi a muro e attaccapanni nel corridoio
- Ripostiglio con torre di lavaggio propria
- Parquet nel corridoio, soggiorno e camere da letto
- Piastrelle in ceramica antracite e facili da man...
Ripartizione dei costi
- Affitto netto
- CHF 1'390
- Costi aggiuntivi
- CHF 130
- Totale delle locazioni
- CHF 1'390
Dettagli immobile
- Disponibile dal
- Su accordo
- Stanze
- 2.5
- Anno di costruzione
- 2025
- Superficie abitabile
- 55 m²
- Piano
- 2°



