Appartamento in affitto - Im Gatter 38, 8240 Thayngen
Perché amerai questa proprietà
Ampio soggiorno
Cucina moderna attrezzata
Balcone soleggiato a ovest
Organizza una visita
Prenota una visita oggi!
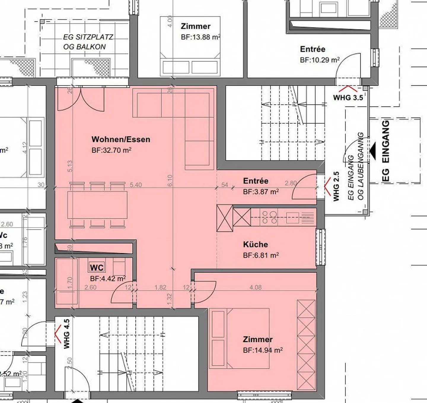
Appartamento accogliente con layout pratico
Affittiamo un appartamento ben tenuto di 2,5 locali al 1° piano, situato nel centro di Thayngen. L'appartamento è attualmente in fase di ristrutturazione.
L'appartamento colpisce per un ampio e luminoso soggiorno e sala da pranzo. Un armadio a muro adiacente alla cucina offre ulteriore spazio di stoccaggio. La cucina Forster senza tempo contiene tutto il necessario.
In tutto l'appartamento è posato un pavimento in laminato e nei bagni è posato un pavimento in piastrelle. È installata una vasca da ...
Ripartizione dei costi
- Affitto netto
- CHF 1’215
- Costi aggiuntivi
- CHF 215
- Totale delle locazioni
- CHF 1’215
Dettagli immobile
- Disponibile dal
- Su accordo
- Stanze
- 2.5
- Piano
- 1°



