Appartamento in affitto - Holeerain 37, 4102 Binningen
Perché amerai questa proprietà
Cucina aperta moderna
Zona giorno luminosa
Accesso con ascensore disponibile
Organizza una visita
Prenota una visita con Lara oggi!
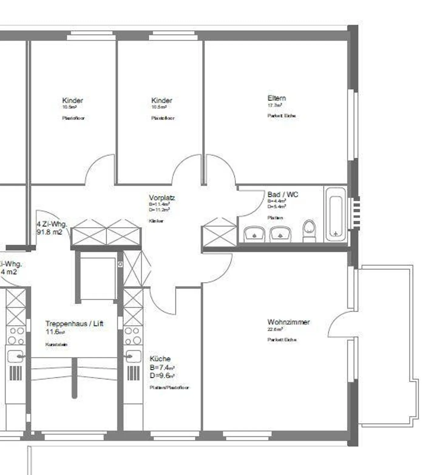
La tua nuova casa: affascinante appartamento di 4 stanze a binningen
Affittiamo un appartamento di 4 stanze al 3° piano in Holeerain 37 a Binningen su appuntamento.
Punti salienti dell'appartamento:
* Cucina moderna e aperta con piano cottura in vetroceramica, lavastoviglie e pavimento in piastrelle facile da mantenere
* Bagno con vasca e possibilità di collegamento per lavatrice
* Soggiorno e camera da letto luminosi con pavimento in parquet
* Pratici armadi a muro nel corridoio
* Cantina per ulteriore spazio di stoccaggio
Un ascensore è disponibile nella proprietà.
Per...
Ripartizione dei costi
- Affitto netto
- CHF 2’190
- Costi aggiuntivi
- CHF 300
- Totale delle locazioni
- CHF 2’190
Dettagli immobile
- Disponibile dal
- 01.10.2025
- Stanze
- 4
- Anno di costruzione
- 1961
- Superficie abitabile
- 92 m²
- Piano
- 3°
- Piani dell'edificio
- 5



