Appartamento in affitto - Bahnhofstrasse 37, 7302 Landquart
Perché amerai questa proprietà
Balcone soleggiato per relax
Cucina moderna con piastrelle
Armadi a muro all'ingresso
Organizza una visita
Prenota una visita con Marina oggi!
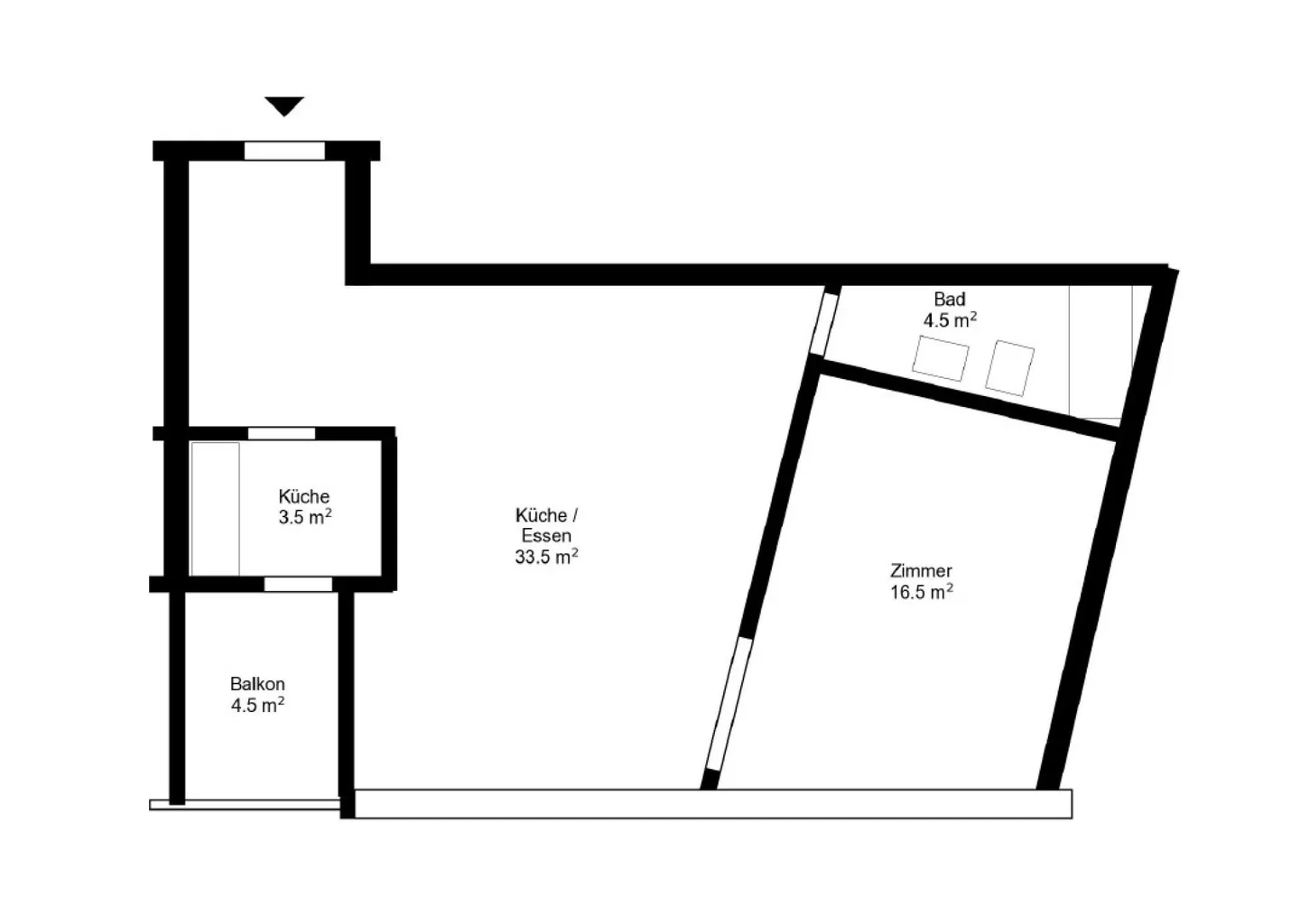
Appartamento 2,5 locali in posizione centrale a Landquart
Espansione
* Ambienti generosamente progettati
* Cucina con pavimento piastrellato
* Bagno con WC
* Balcone soleggiato
* Armadi a muro all'ingresso
* Nuovo pavimento
* Nuova vernice
* Lavanderia comune (lavatrice e asciugatrice)
* Cantina
* Posto auto in garage può essere affittato separatamente
Visita
La visita dell'appartamento si terrà mercoledì 28 gennaio 2026 alle 09:30.
Ripartizione dei costi
- Affitto netto
- CHF 1’600
- Costi aggiuntivi
- CHF 180
- Totale delle locazioni
- CHF 1’600
Dettagli immobile
- Disponibile dal
- 01.12.2025
- Stanze
- 2.5
- Anno di costruzione
- 1996
- Superficie abitabile
- 59 m²
- Superficie utilizzabile
- 59 m²
- Piano
- 3°
- Piani dell'edificio
- 5



