Appartamento in affitto - Stockerstrasse 35, 8810 Horgen
Perché amerai questa proprietà
Ampia terrazza giardino
Finiture di alta qualità
Due bagni moderni
Organizza una visita
Prenota una visita con Hug oggi!
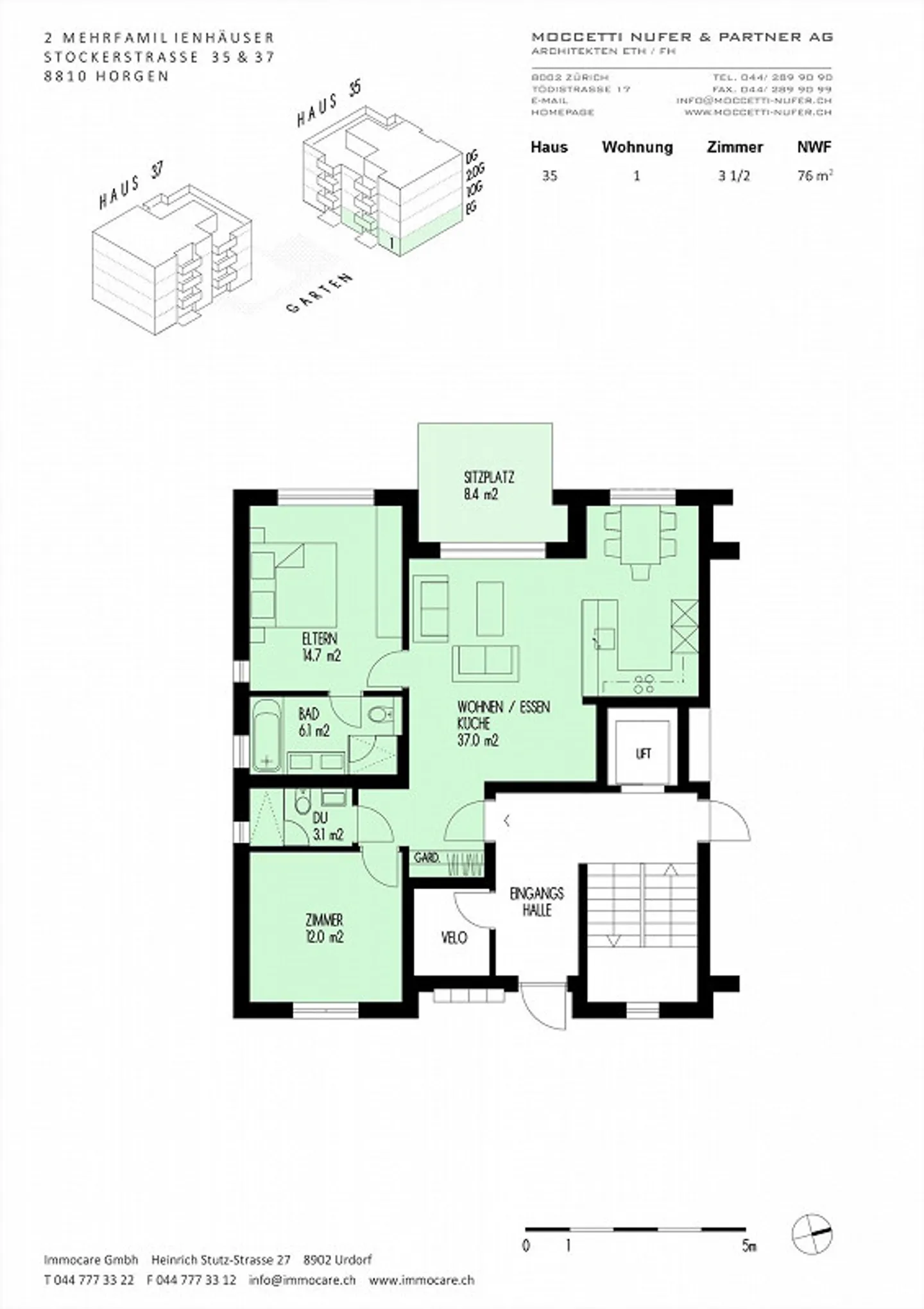
Moderno appartamento con giardino di 3,5 stanze
A partire dal 01.07.2026, affittiamo un moderno appartamento di 3,5 stanze in standard di proprietà con terrazza giardino.
L'appartamento dispone di due celle umide moderne (bagno con vasca + doccia, doppio lavabo e WC, oltre a doccia/WC separati)
Il soggiorno e la sala da pranzo con cucina coprono 37 m2, la camera matrimoniale è di 14,7 m2 e la 2a camera ha una superficie di 12 m2.
Pavimenti: In tutte le stanze, compresa la cucina, è posato un pavimento in parquet. Nelle celle umide ci sono piastr...
Ripartizione dei costi
- Affitto netto
- CHF 2'980
- Costi aggiuntivi
- CHF 350
- Totale delle locazioni
- CHF 2'980
Dettagli immobile
- Disponibile dal
- Su accordo
- Stanze
- 3.5
- Anno di costruzione
- 2018
- Superficie abitabile
- 76 m²
- Piano
- Terra
- Piani dell'edificio
- 4



