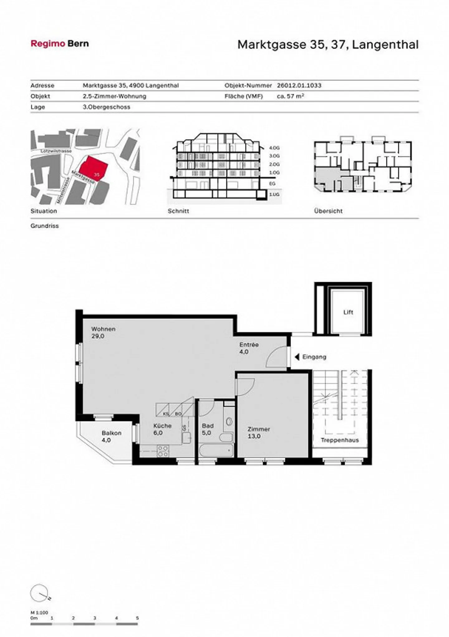
Appartamento in affitto - Marktgasse 35, 4900 Langenthal
Perché amerai questa proprietà
Nessuna cauzione richiesta
Posizione centrale
Attrezzature moderne in cucina
Organizza una visita
Prenota una visita con Artan oggi!
AFFITTO SENZA CAUZIONE - accogliente appartamento di 2,5 stanze in affitto
Questo appartamento centrale in città è perfetto per famiglie con bambini. Le scuole, i collegamenti con i mezzi pubblici e le opzioni di shopping attraenti si trovano praticamente davanti alla tua porta.
Per la tua qualità abitativa:
- Cucina con piano cottura in vetroceramica e lavastoviglie
- Pavimenti in piastrelle e parquet
- Bagno con vasca/WC
- Cantina
- Ascensore
- Balcone
In aggiunta su richiesta: Posto auto in garage sotterraneo, a partire da CHF 120.00/mese
Con questo immobile in affitto, non ...
Ripartizione dei costi
- Affitto netto
- CHF 1'100
- Costi aggiuntivi
- CHF 160
- Totale delle locazioni
- CHF 1'100
Dettagli immobile
- Disponibile dal
- Su accordo
- Stanze
- 2.5
- Anno di costruzione
- 1978
- Anno di ristrutturazione
- 2019
- Superficie abitabile
- 57 m²
- Piano
- 3°



