Appartamento in affitto - Erlkönigweg 35, 4058 Basel
Perché amerai questa proprietà
Finiture di alta qualità
Ventilazione controllata
Loggia per rilassarsi
Organizza una visita
Prenota una visita oggi!
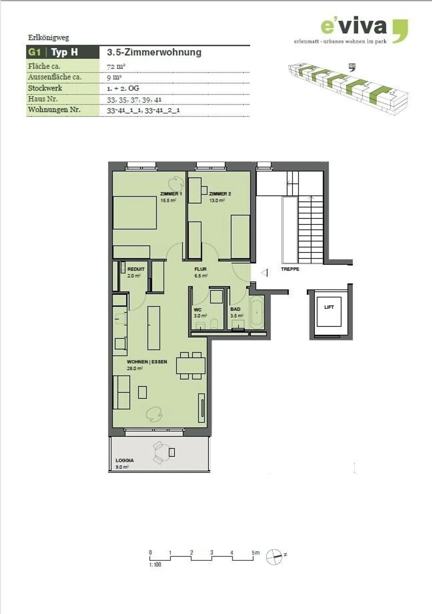
Appartamento 3.5 locali, 72 m2, CHF 1'990.--
"Vivere in un parco nel cuore della città"
Affittiamo un moderno e bello appartamento di 3.5 locali al 1° piano con finiture attraenti e di alta qualità dal 01.05.2026 o su accordo.
L'appartamento ha 72 m2 ed è dotato come segue:
- Parquet in rovere in tutte le aree abitative
- Pavimenti in ceramica nel bagno
- Ventilazione controllata dell'appartamento
- Lavatrice e asciugatrice
- Riscaldamento a pavimento
- Lavastoviglie
- Collegamento in fibra ottica
- Armadio nell'area d'ingresso
- Loggia
- Cantina
I pos...
Ripartizione dei costi
- Affitto netto
- CHF 1’990
- Costi aggiuntivi
- CHF 200
- Totale delle locazioni
- CHF 1’990
Dettagli immobile
- Disponibile dal
- Su accordo
- Stanze
- 3.5
- Anno di costruzione
- 2015
- Superficie abitabile
- 72 m²
- Piano
- 1°


