Appartamento in affitto - Rue Pierre-Ardieu 34, 1630 Bulle
Perché amerai questa proprietà
Cucina attrezzata V-Zug
Balcone esposto a sud
Colonna di lavaggio privata
Organizza una visita
Prenota una visita oggi!
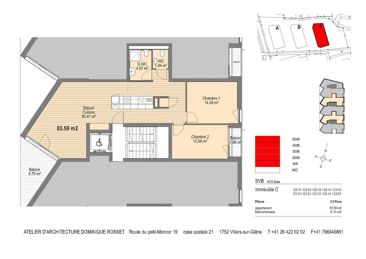
Magnifique 3.5 pièces d'environ 84 m2
A 2 minutes de l'autoroute et à 50 m des commerces, ce spacieux 3.5 pièces au 2ème a un emplacement idéal et proche de toutes commodités.
Cet appartement est composé d'une cuisine toute équipée (appareils électroménagers V-Zug) et ouverte sur le séjour. 2 chambres avec parquet et 2 sanitaires (Douche/WC et WC séparé) . De plus, une colonne de lavage privative complète ce bien. Les fenêtres sont en PVC et triple vitrage. Un balcon, orientée sud, offre à cet appartement une vue imprenable sur les ...
Ripartizione dei costi
- Affitto netto
- CHF 1’670
- Costi aggiuntivi
- CHF 270
- Totale delle locazioni
- CHF 1’670
Dettagli immobile
- Disponibile dal
- 16.04.2026
- Stanze
- 3.5
- Anno di costruzione
- 2017
- Superficie abitabile
- 84 m²
- Superficie utilizzabile
- 84 m²
- Piano
- 2°



