Appartamento in affitto - Rue Caroline 34, 1227 Les Acacias
Perché amerai questa proprietà
Soggiorno spazioso
Cucina moderna attrezzata
Ingresso sicuro
Organizza una visita
Prenota una visita oggi!
Quartiere degli acacias
La strada Caroline 34 è una strada situata nel quartiere degli Acacias, non lontano da scuole, negozi e trasporti.
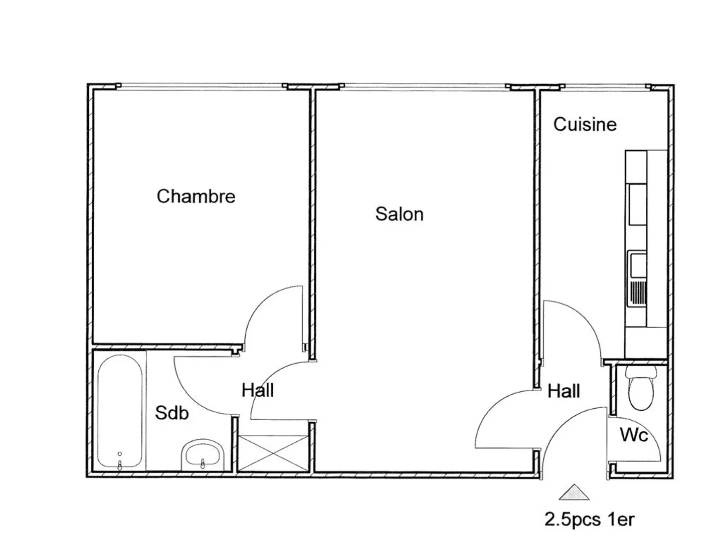
L'appartamento che vi proponiamo si trova al 3° piano di un edificio ben tenuto con ingresso sicuro e ascensore e si compone come segue:
Ingresso, una cucina moderna chiusa completamente attrezzata e arredata, un soggiorno luminoso con accesso a un balcone molto grande, una bella camera da letto, un bagno e un wc separato completano questa proprietà.
Visita: Sig. Negreche - Gestione ...
Ripartizione dei costi
- Affitto netto
- CHF 2’090
- Costi aggiuntivi
- CHF 200
- Totale delle locazioni
- CHF 2’090
Dettagli immobile
- Disponibile dal
- 01.12.2025
- Stanze
- 3
- Anno di costruzione
- 1975
- Superficie abitabile
- 43 m²
- Superficie utilizzabile
- 43 m²
- Piano
- 3°


