Appartamento in affitto - Halta 34, 3186 Düdingen
Perché amerai questa proprietà
Vicino ai trasporti pubblici
Balcone con vista serena
Spazi comunitari vivaci
Organizza una visita
Prenota una visita con M. oggi!
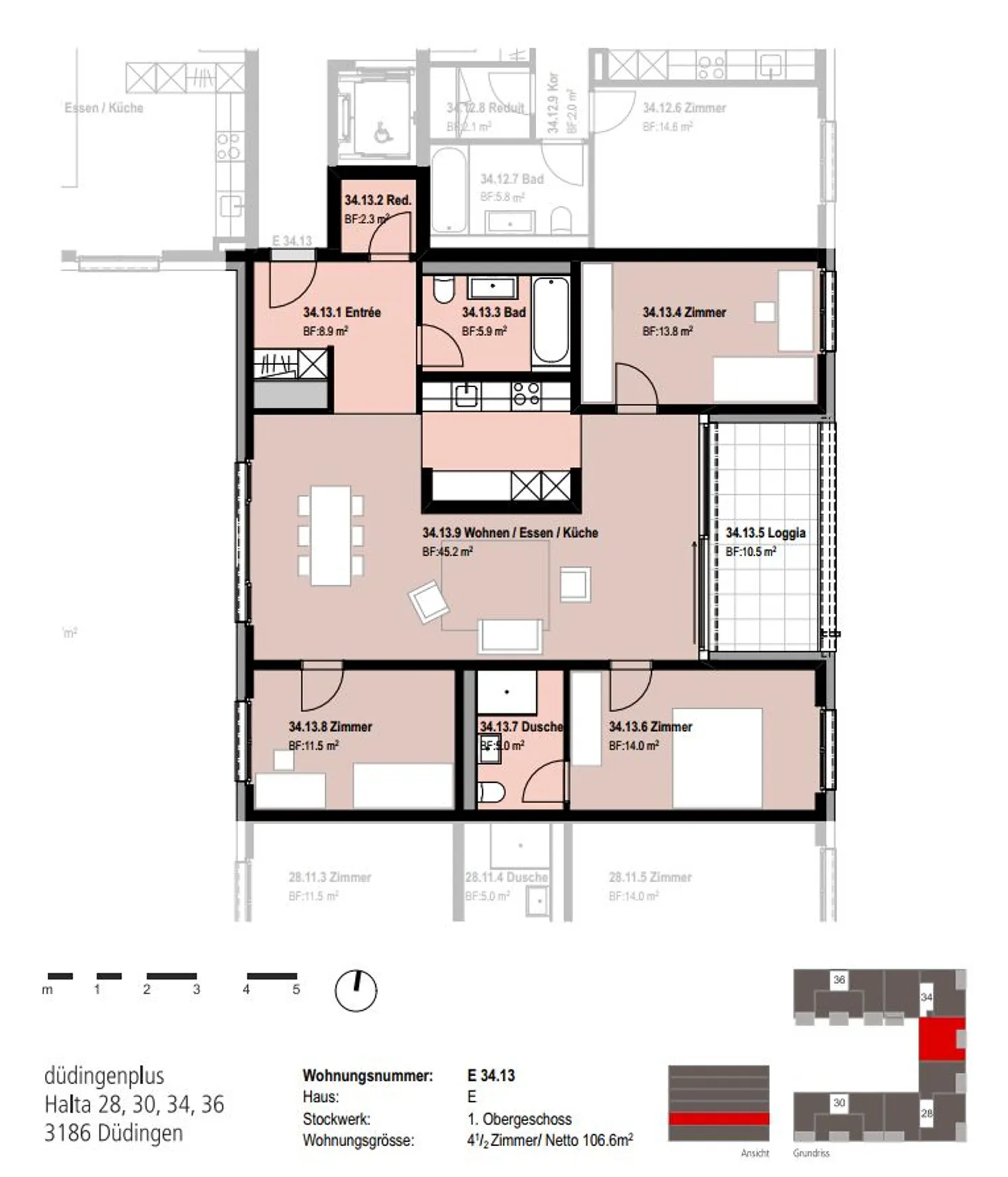
Appartamento 4.5 stanze
La tua nuova casa a Guin - La tua nuova casa a Düdingen
Offriamo alloggi moderni, contemporanei e attraenti a soli pochi metri dalla stazione ferroviaria di Guin e l'ingresso dell'autostrada si trova a meno di 5 chilometri.
Questi appartamenti di 4.5 stanze sono composti da un ingresso, una cucina, un soggiorno, due camere da letto, un ripostiglio, un bagno/doccia, un bagno e un balcone.
Una cantina completa questa proprietà.
Posti auto sotterranei sono anche disponibili per l'affitto.
Situato n...
Ripartizione dei costi
- Affitto netto
- CHF 2’210
- Costi aggiuntivi
- CHF 360
- Totale delle locazioni
- CHF 2’210
Dettagli immobile
- Disponibile dal
- Su accordo
- Stanze
- 4.5
- Bagni
- 2
- Superficie abitabile
- 106 m²



