Attico in affitto - Hardstrasse 33, 8424 Embrach
Perché amerai questa proprietà
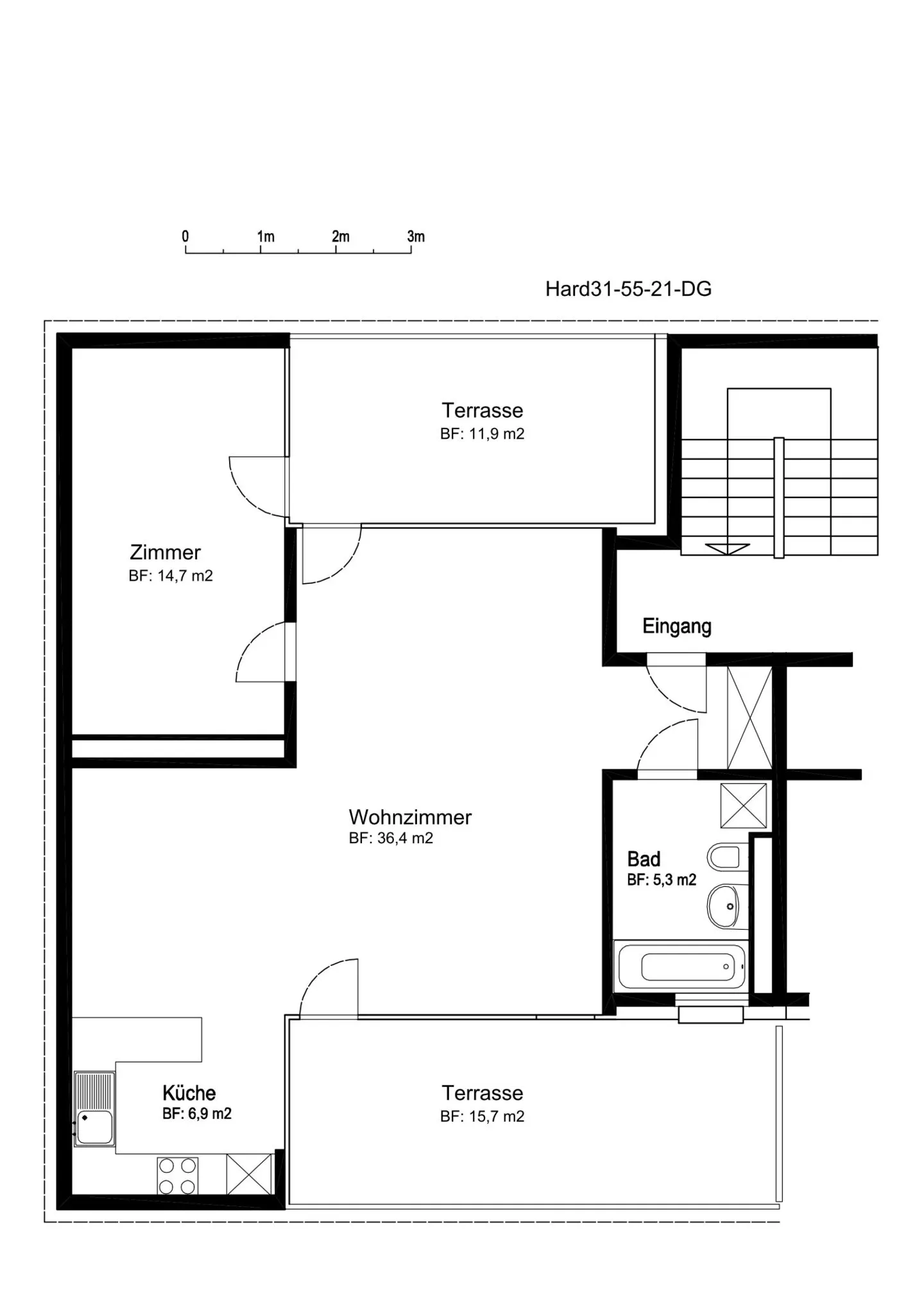
Ampio soggiorno di 36 mq
Due grandi terrazze soleggiate
Lavatrice privata nel bagno
Organizza una visita
Prenota una visita con Tiziana oggi!
Goditi il sole su due terrazze: appartamento 2.5 stanze in mansarda
Sole del pomeriggio nel verde: Rilassati a Embrach
Affittiamo un luminoso appartamento di 2,5 stanze con due ampie terrazze in mansarda a partire dal 01.04.2026 o su accordo.
L'appartamento è dotato dei seguenti comfort:
- Finestre a tutta altezza in tutto l'appartamento
- Soggiorno-pranzo aperto di circa 36 mq
- Cucina con isola e piano in granito, piano cottura in vetroceramica, lavastoviglie e grande frigorifero
- Due balconi di 16 mq e 12 mq ciascuno con sole del pomeriggio
- Lavatrice privata nel ...
Ripartizione dei costi
- Affitto netto
- CHF 1’773
- Costi aggiuntivi
- CHF 170
- Totale delle locazioni
- CHF 1’773
Dettagli immobile
- Disponibile dal
- 01.04.2026
- Stanze
- 2.5
- Anno di costruzione
- 2003
- Superficie abitabile
- 66 m²
- Superficie utilizzabile
- 66 m²
- Piano
- 2°




