1 / 3

Appartamento in affitto - Egelbergstrasse 33, 3006 Bern

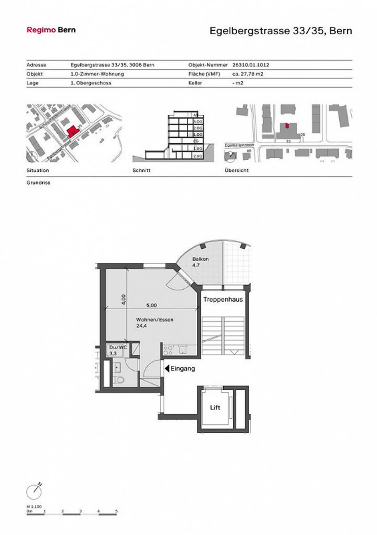
1 stanze • 27 m² • 1° piano
CHF 920
CHF 409 m² / year

Perché amerai questa proprietà

Nessun deposito richiesto

Cucina moderna

Terrazza condivisa

Organizza una visita

Prenota una visita con Michèle oggi!

Michèle Scherwey
Regimo Bern AG
Questa descrizione è stata tradotta automaticamente da Tedesco.

Affittare senza deposito - piccolo ma ben curato e centralmente situato

Combina la vita in un tranquillo quartiere residenziale con i vantaggi di essere vicino alla città. I mezzi pubblici e i negozi per le necessità quotidiane si trovano anche nelle immediate vicinanze.

Per la tua qualità abitativa:

- Cucina con lavastoviglie, piano cottura in ceramica, forno

- Pavimenti in parquet e piastrelle

- Bagno con vasca e WC

- Armadio a muro

- Balcone

- Ascensore

- Cantina

- Terrazza sul tetto in comune

Con questo immobile in affitto, non devi versare come al solito tre mesi di affi...

Ripartizione dei costi

Affitto netto
CHF 920
Costi aggiuntivi
CHF 120
Totale delle locazioni
CHF 920

Dettagli immobile

Disponibile dal
Su accordo
Stanze
1
Superficie abitabile
27
Piano

Caratteristiche

Balcone
Ascensore

Agenzia

Regimo Bern AG
Indirizzo:Bern, Thunstrasse 32, 3005
Ref: 26310.01.1012
Online da
23/10/2025
6 ore fa

Località

Egelbergstrasse 33, 3006 Bern

Fonti