1 / 5

Appartamento in affitto - Schallengasse 32, 4313 Möhlin

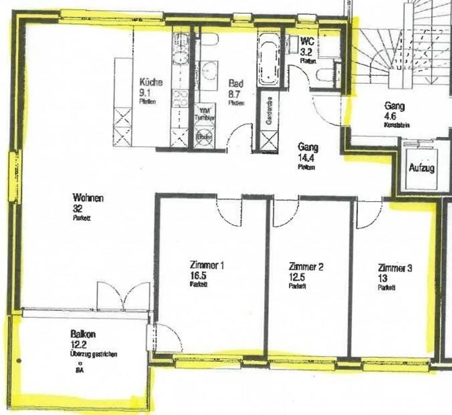
4.5 stanze • 110 m² • 2° piano
CHF 2’070
CHF 226 m² / year

Perché amerai questa proprietà

Ampio balcone per relax

Cucina moderna con lavastoviglie

Ambiente verde adatto ai bambini

Organizza una visita

Prenota una visita con Elena oggi!

Elena Koradi
Regimo Basel AG
Questa descrizione è stata tradotta automaticamente da Tedesco.

Zona residenziale tranquilla al confine con spazi verdi

Apprezzi un ambiente verde e adatto ai bambini? In un insediamento ben curato, abbiamo l'appartamento familiare adatto con un rapporto qualità-prezzo attraente per te. Anche il centro del villaggio di Möhlin e i mezzi pubblici si trovano nelle immediate vicinanze.

Per la tua qualità abitativa:

* Pavimenti in parquet in soggiorno e camere da letto

* Cucina con piano cottura in ceramica e lavastoviglie

* Bagno con vasca

* Bagno con doccia

* Ampio balcone

* Cantina

Interessato? Allora vale la pena una vis...

Ripartizione dei costi

Affitto netto
CHF 2’070
Costi aggiuntivi
CHF 230
Totale delle locazioni
CHF 2’070

Dettagli immobile

Disponibile dal
16.12.2025
Stanze
4.5
Superficie abitabile
110
Piano

Caratteristiche

Balcone
Ascensore

Agenzia

Regimo Basel AG
Indirizzo:Dufourstrasse 21, 4010, Basel
Ref: 16518.02.0202
Online da
27/09/2025
26 giorni fa

Località

Schallengasse 32, 4313 Möhlin

Fonti