Appartamento in affitto - Hauptstrasse 32, 5616 Meisterschwanden
Perché amerai questa proprietà
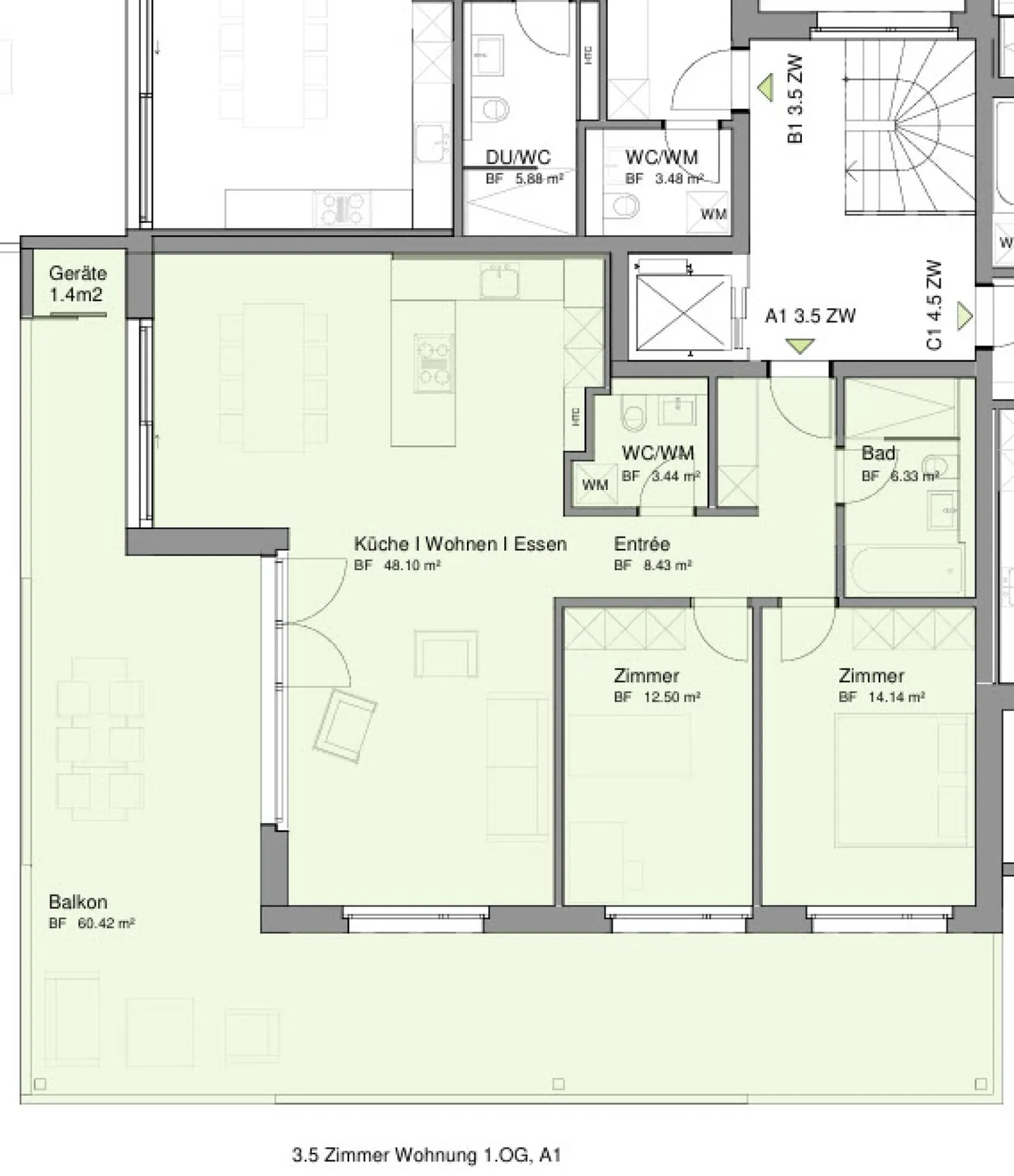
Ampia terrazza di 60 m²
Cucina moderna in granito
Eventi culturali comunitari
Organizza una visita
Prenota una visita con Stefan oggi!
Appartamento di 3.5 locali al 1° piano
Potenziali inquilini
Le richieste con indirizzo completo e numero di telefono saranno ora elaborate!
Si prega di fornire un estratto aggiornato dell'ufficio di esecuzione.
Grazie
Riassunto
Dimensioni dell'appartamento
- Appartamento di 3.5 locali al 1° piano, spazioso e luminoso, costruito nel 2021
Superficie
- 93 m2 di superficie abitabile netta
- 9 m2 di cantina
- 60 m2 di terrazza
Ripostiglio
- Lavatrice-asciugatrice nell'appartamento
Meisterschwanden, il comune
- sul lato soleggiato.
- con un'aliquota fis...
Dettagli immobile
- Disponibile dal
- 01.10.2024
- Stanze
- 3.5
- Anno di costruzione
- 2021
- Superficie abitabile
- 93 m²
- Piano
- 1°
- Piani dell'edificio
- 4



