Appartamento in affitto - Wasserfuristrasse 31, 8542 Wiesendangen
Perché amerai questa proprietà
Cucina moderna con balcone
Stanza hobby riscaldata inclusa
Ottimi spazi verdi nelle vicinanze
Organizza una visita
Prenota una visita oggi!
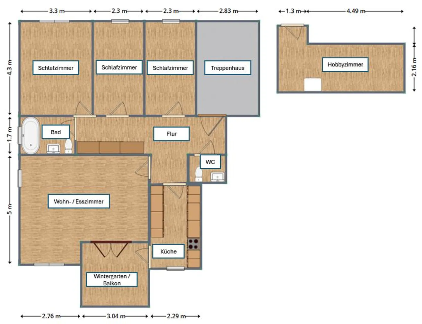
Appartamento di 4,5 stanze
Appartamento di 4,5 stanze con vista panoramica a Wiesendangen, a bassa tassazioneSuperficie totale utilizzabile inclusa una sala hobby riscaldata e una cantina separata - 116m2Cucina moderna e ampia (2021)Veranda e balconeLavatrice, asciugatrice (nuove)Bagno, WC separatoArmadi spaziosiTutte le stanze sono dotate di parquetStanza hobby riscaldata di 14 m2 per uso personale (ristrutturata nel 2025)Cantina separataBasso tasso fiscale dell'88%Area verde straordinaria con diversi parchi giochiFermat...
Ripartizione dei costi
- Affitto netto
- CHF 2’390
- Costi aggiuntivi
- CHF 390
- Totale delle locazioni
- CHF 2’390
Dettagli immobile
- Disponibile dal
- Su accordo
- Stanze
- 4.5
- Superficie abitabile
- 92 m²
- Piano
- 2°



