Appartamento in affitto - Metzgergasse 31, 9000 St. Gallen
Perché amerai questa proprietà
Posizione centrale con servizi
Bagno moderno con lavanderia
Layout spazioso con terrazza
Organizza una visita
Prenota una visita con Clerici oggi!
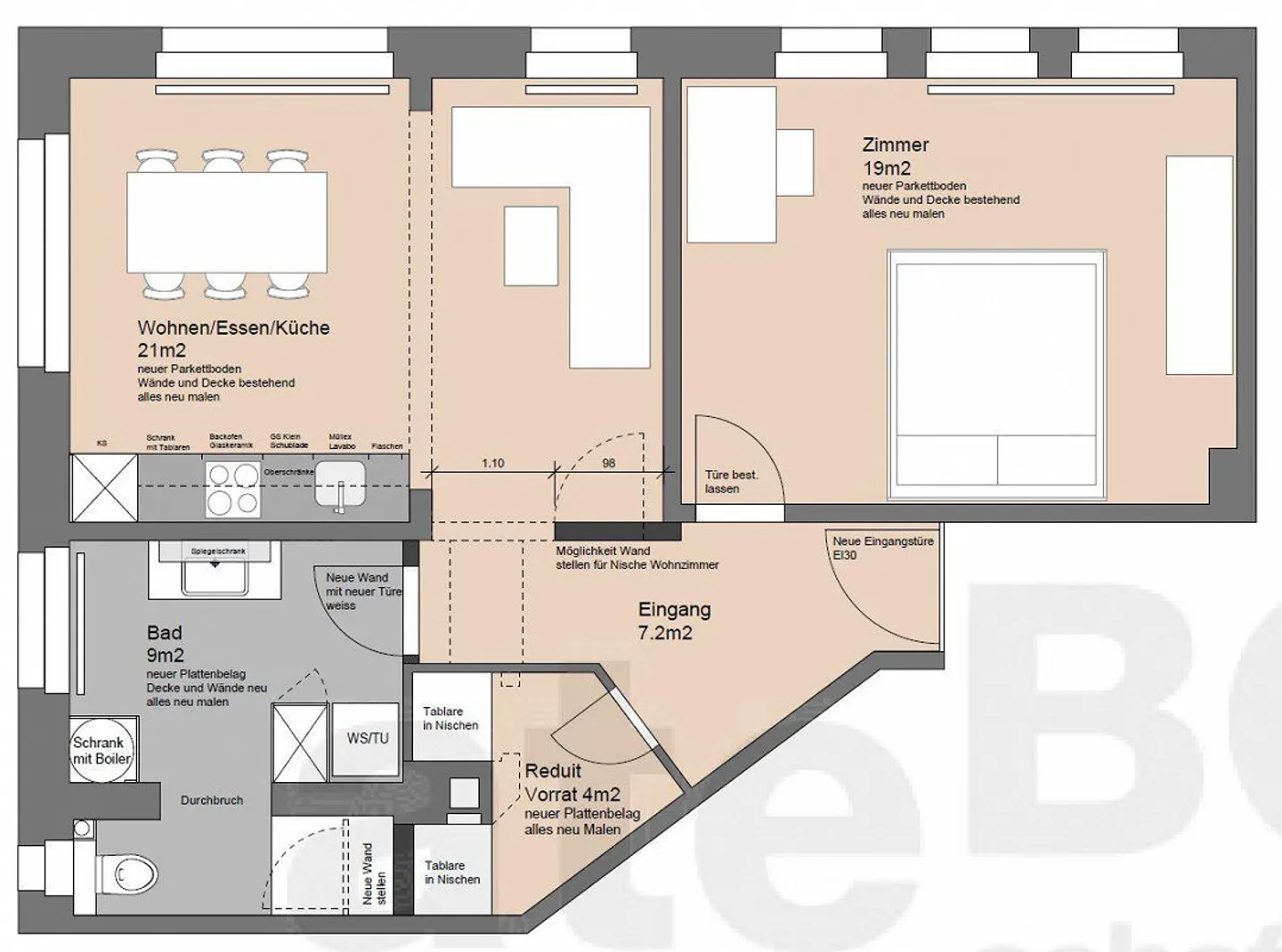
Appartamento elegante in città da affittare
Questo accogliente appartamento nel cuore di San Gallo colpisce per i seguenti extra:
- posizione centrale; ufficio postale, autobus, negozi e opzioni di vita notturna proprio davanti alla tua porta
- Intero appartamento con pavimenti in parquet di rovere
- Bagno moderno con doccia, lavabo, WC e propria lavatrice e asciugatrice
- pianta generosa e molte finestre nella zona giorno e pranzo
- camera separata e spaziosa
- connessione in fibra ottica
- terrazza sul tetto da condividere
- compartimento della...
Ripartizione dei costi
- Affitto netto
- CHF 1’370
- Costi aggiuntivi
- CHF 160
- Totale delle locazioni
- CHF 1’370
Dettagli immobile
- Disponibile dal
- Su accordo
- Stanze
- 2.5
- Anno di ristrutturazione
- 2017
- Superficie abitabile
- 60 m²
- Piano
- 2°
- Piani dell'edificio
- 4



