Appartamento in affitto - Grütstrasse 31, 8134 Adliswil
Perché amerai questa proprietà
Loggia accogliente con vista
Elegante pavimento in parquet
Accesso pratico al bus vicino
Organizza una visita
Prenota una visita con Sylvia oggi!
Posizione
La proprietà ben curata si trova all'estremità nord di Adliswil. Il centro è facilmente raggiungibile in autobus (fermata dell'autobus a circa 100 metri). L'Albispass e il Wildnispark sono destinazioni popolari per il tempo libero.
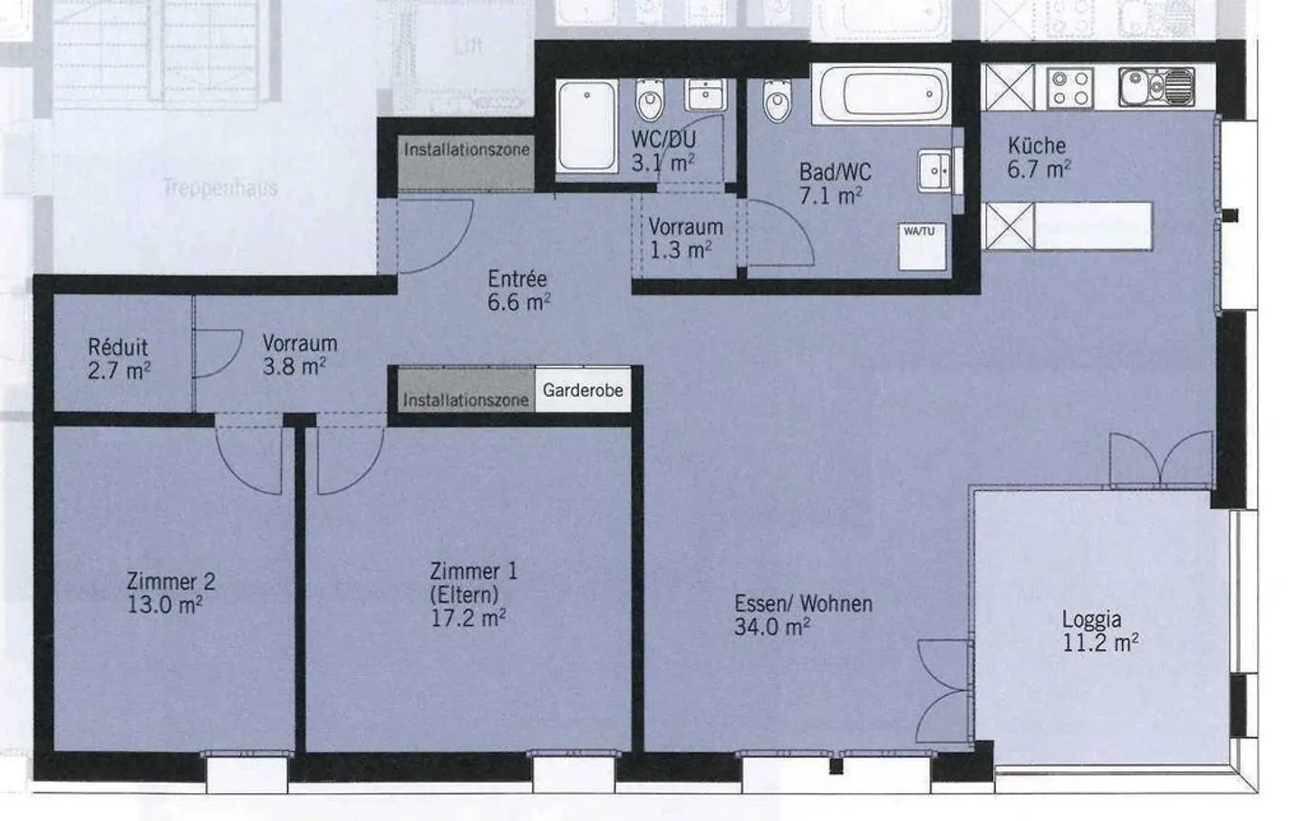
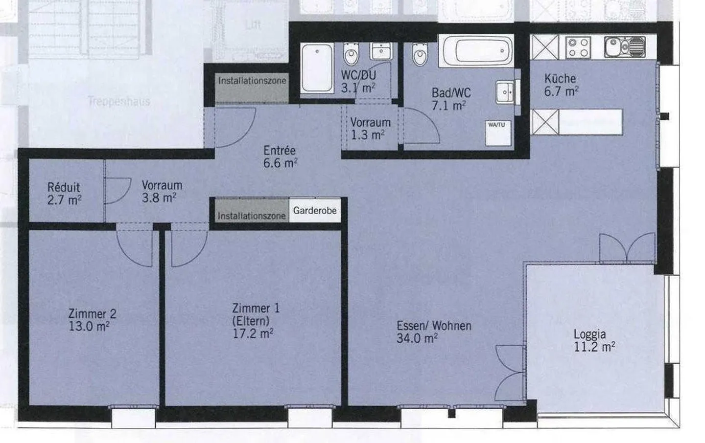
Il piano pratico ti consente la libertà di arredare i 97m2 in modo individuale. Il pavimento in parquet in tutti gli ambienti abitativi crea anche un'atmosfera accogliente. Sulla loggia puoi concludere la giornata comodamente al sole del pomeriggio.
I vantag...
Ripartizione dei costi
- Affitto netto
- CHF 3’010
- Costi aggiuntivi
- CHF 350
- Totale delle locazioni
- CHF 3’010
Dettagli immobile
- Disponibile dal
- Su accordo
- Stanze
- 3.5
- Servizi igienici
- 1
- Anno di costruzione
- 2011
- Superficie abitabile
- 97 m²
- Piano
- 1°



