Appartamento in affitto - Untere Storchenhofstrasse 309, 5044 Schlossrued
Perché amerai questa proprietà
Interni appena ristrutturati
Balcone panoramico per relax
Ambiente rurale tranquillo
Organizza una visita
Prenota una visita con Layrian oggi!
Vivere in campagna con vista – appartamento di 4,5 stanze appena ristrutturato
Chi apprezza la tranquillità, la natura e una casa con vista si sentirà subito a casa qui. Situato in Untere Storchenhofstrasse 309 a Schlossrued, questo affascinante appartamento di 4,5 stanze al 1° piano è circondato da prati, con vista sul paesaggio e accompagnato dal dolce suono di un ruscello e dal canto degli uccelli.
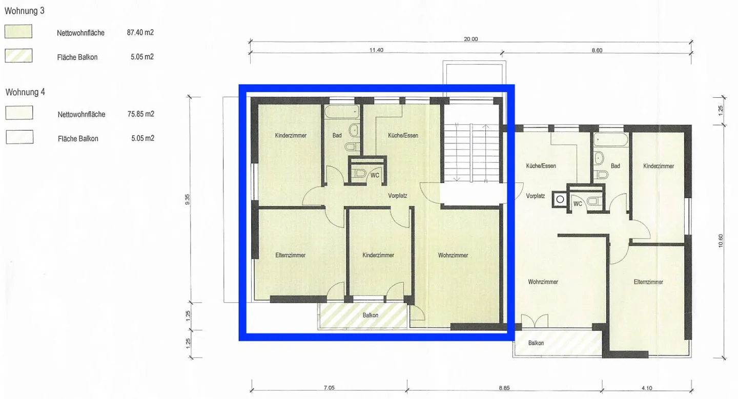
L'appartamento offre 87,4 m² di superficie abitabile e sarà completamente ristrutturato prima del vostro ingresso. In questo modo, potrete trasferirvi in una casa curata e acc...
Ripartizione dei costi
- Affitto netto
- CHF 1'640
- Costi aggiuntivi
- CHF 250
- Totale delle locazioni
- CHF 1'640
Dettagli immobile
- Disponibile dal
- 10.03.2026
- Stanze
- 4.5
- Anno di costruzione
- 1973
- Anno di ristrutturazione
- 2026
- Superficie abitabile
- 87 m²
- Piano
- 1°



